EasyManua.ls Logo

Viessmann VITOCELL 100-U - Sample Application 3 - Vitocell 100-L with Vitotrans 222 and Constant Flow Temperatures

Viessmann VITOCELL 100-U
56 pages
Print Icon
To Next Page IconTo Next Page
To Next Page IconTo Next Page
To Previous Page IconTo Previous Page
To Previous Page IconTo Previous Page
Loading...
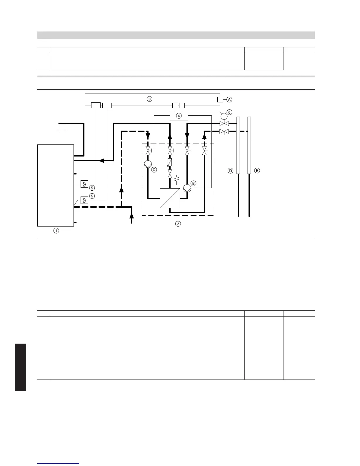
Pos. Title Number Part no.
6
In conjunction with the Vitotronic 200-H:
Immersion temperature sensor (Viessmann NTC) as cylinder temperature sensor
1 7438 702
7
Feed pump (distributor) subject to system on site
Sample application 3 – Vitocell 100-L with Vitotrans 222 and constant flow temperatures
M
A
Power supply connection 230 V~ 50 Hz; install a mains isolator in
accordance with regulations
B
Heating circuit pump (primary), highly efficient
C
Cylinder loading pump (secondary), highly efficient
D
Flow distributor (under pressure)
E
Return collector
Cylinder heating will be initiated by the upper temperature controller.
The lower temperature controller terminates cylinder heating.
You can select the temperature at the temperature controller.
Example:
Max. 55 ºC ON, 50 ºC OFF (at heating temperature 60 ºC).
Install a motorised valve in the flow line when connecting the Vitotrans
222 heat exchanger set for constant flow temperatures without mixer
assembly to a flow distributor (under pressure) (boiler with heating cir-
cuit pump to distributor). The motorised valve will be closed during non-
heating periods, preventing a forced flow through the Vitotrans 222
during such times.
Required components
Pos. Title Number Part no.
1
Vitocell 100-L, 500 l (shown), or subject to system Z002 074
Vitocell 100-L, 750 l, or subject to system Z004 042
Vitocell 100-L, 1000 l subject to system Z004 043
2
Vitotrans 222
up to 80 kW 1 7453 039
up to 120 kW 1 7453 040
up to 240 kW 1 7453 041
3
Junction box 1 on site
4
Contactor relay
*17
1 7814 681
5
Temperature controller 2 7151 989
6
Motorised valve
*17
1 on site
*17
Only required for pressurised flow distributors.
Installation — cylinder loading system
(cont.)
48
VIESMANN
DHW heating
7
5414 646 GB

Table of Contents

Other manuals for Viessmann VITOCELL 100-U

Related product manuals