EasyManua.ls Logo

Viessmann VITOCELL 100-U - Sample Application 2 - Vitocell 100-L with Vitotrans 222 and a Third Party Control Unit

Viessmann VITOCELL 100-U
56 pages
Print Icon
To Next Page IconTo Next Page
To Next Page IconTo Next Page
To Previous Page IconTo Previous Page
To Previous Page IconTo Previous Page
Loading...
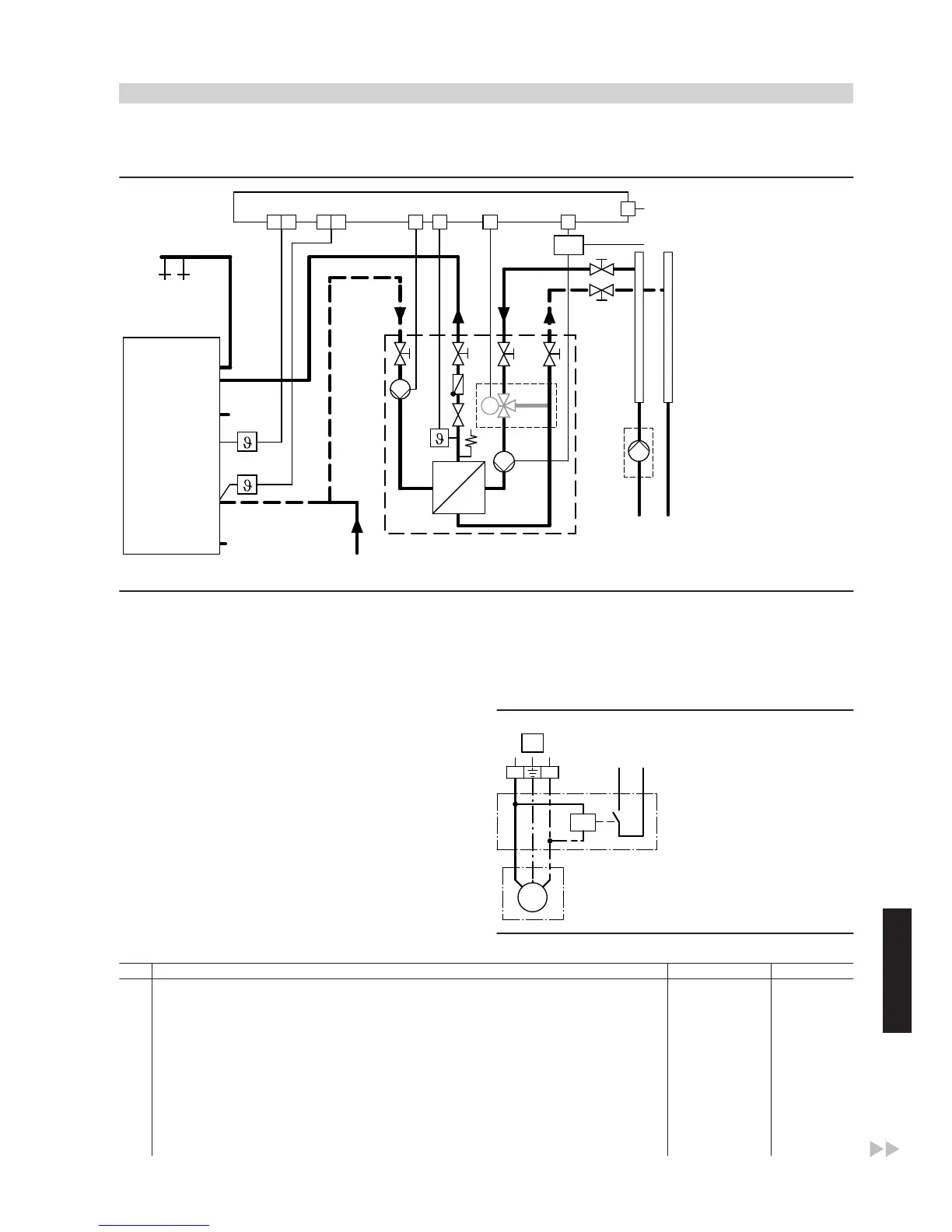
Sample application 2 – Vitocell 100-L with Vitotrans 222 and a third party control unit
(modulating boiler operation)
A1A1
M
5
21
17
52
20
40
5 A 55 B
4
A
D
E
5
CB
7
3
2
1
6
A
Power supply connection 230 V~ 50 Hz; install a mains isolator in
accordance with regulations
B
Flow distributor (under pressure)
C
Return collector
D
Floating contact for burner start by the third party control unit
E
Additional motorised valve in the flow to the Vitotrans 222 if the
differential pressure between the flow distributor and the return
collector > 3 bar (0.3 MPa)
In conjunction with a third party control unit, the cylinder loading pump
is regulated by the Vitotronic 200-H.
The top cylinder temperature sensor is connected to plug
%
A, while
the bottom one is connected to plug
%
B.
System-specific coding at the Vitotronic
4
Set code "4C : 1":
Use of output
as primary pump for the heat exchanger set.
Set code "4E : 1":
Use of output
gS
as primary control for the heat exchanger set.
Set code "55 : 3":
Use of cylinder temperature control for the heat exchanger set.
Set code "6A : 113":
With Vitotrans 222, 240 kW, servomotor runtime 113 s.
Set code "9F : 1" if no outside temperature sensor is connected (e.g.
Vitotronic 200-H, type HK1B, only regulates the Vitotrans 222).
Contactor relay connection
øø
KK
L
M
N
20
D
5
1~
Required components
Pos. Title Number Part no.
1
Vitocell 100-L, 500 l (shown), or subject to system Z002 074
Vitocell 100-L, 750 l, or subject to system Z004 042
Vitocell 100-L, 1000 l subject to system Z004 043
2
Vitotrans 222
up to 80 kW 1 7453 039
up to 120 kW 1 7453 040
up to 240 kW 1 7453 041
3
Mixer assembly (incl. 3-way mixing valve, servomotor, sensors, pipework) for the Vitotrans 222
up to 120 kW 1 7164 620
up to 240 kW 1 7164 621
4
Vitotronic 200-H 1 see pricelist
5
Contactor relay 1 7814 681
Installation — cylinder loading system
(cont.)
DHW heating
VIESMANN
47
5414 646 GB
7

Table of Contents

Other manuals for Viessmann VITOCELL 100-U

Related product manuals