EasyManua.ls Logo

Vitronics Soltec XPM3m - Page 107

Vitronics Soltec XPM3m
108 pages
Print Icon
To Next Page IconTo Next Page
To Next Page IconTo Next Page
To Previous Page IconTo Previous Page
To Previous Page IconTo Previous Page
Loading...
Technical Reference Manual-XPM3m Revision Date: August 2014
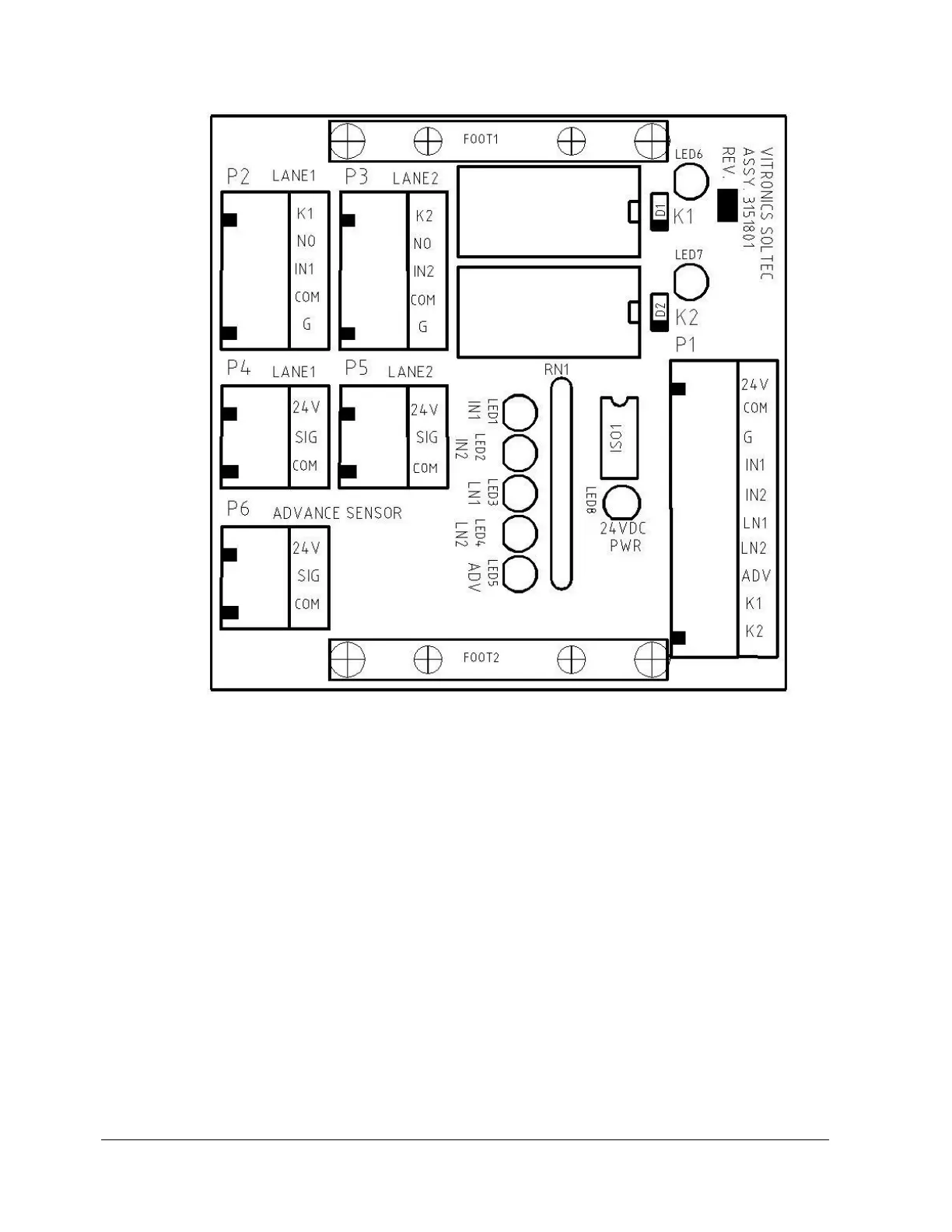
E3151801A ASSY SMEMA/BOARD TRACKING INTERFACE PCB
K1 is installed for a single or dual lane SMEMA configuration by plugging in a SPST relay (E1480201).
K2 is installed for a dual lane SMEMA configuration by plugging in a SPST relay (E1480201).
P1 WA100 interface cable to oven for on-load connections or WA101 interface cable to oven for off-load
connections.
P2 lane 1 SMEMA cable assembly E3153401 on-load or E3153402 off-load.
P3 lane 2 SMEMA cable assembly E3153401 on-load or E3153402 off-load.
P4 lane 1 on-load or off-load board sensor.
P5 lane 2 on-load or off-load board sensor.
P6 lane 3 on-load or off-load board sensor.
LED1 lane 1 board available at on-load from SMEMA interface.
LED2 lane 2 board available at on-load from SMEMA interface.
LED3 lane 1 on-load or off-load board sensor signal.
LED4 lane 2 on-load or off-load board sensor signal.
LED5 lane 3 on-load or off-load board sensor signal.
LED6 lane 1 oven is ready to accept boards to upstream or lane 1 board is available to downstream.
LED8 lane 1 oven is ready to accept boards to upstream or lane 1 board is available to downstream.
LED9 24vdc power is present to the E3151801 board.

Table of Contents

Related product manuals