EasyManua.ls Logo

Westerbeke 12.5 BTDA - Starter Motor Lay-Up; Cylinder Lubrication (Diesel); Intake Manifold [Gasoline] Protection; Cylinder Lubrication [Gasoline]

Westerbeke 12.5 BTDA
70 pages
Print Icon
To Next Page IconTo Next Page
To Next Page IconTo Next Page
To Previous Page IconTo Previous Page
To Previous Page IconTo Previous Page
Loading...
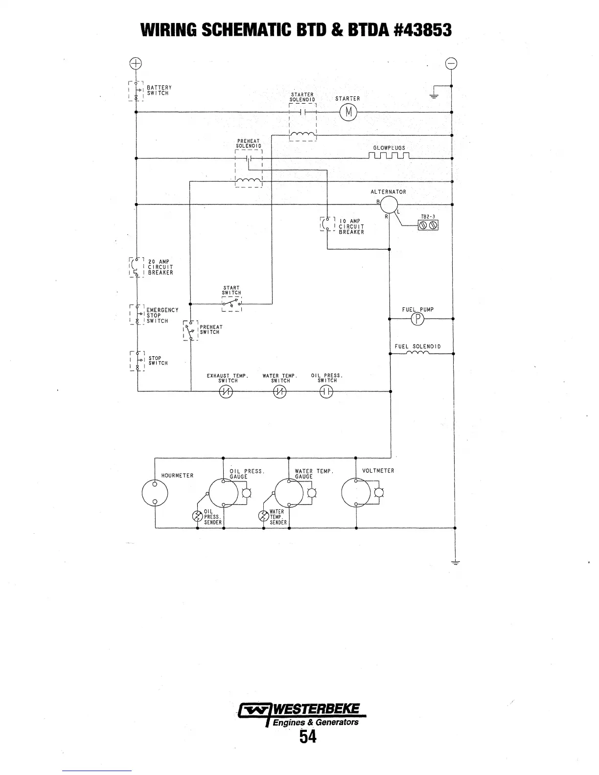
WIRING
SCHEMATIC
BTD
&
BTDA
#43853
:t
1
BATTERY
,
SWITCH
20
AMP
CIRCUIT
BREAKER
EMERGENCY
STOP
SWITCH
r
STQP
SWITCH
I
I
,
__
-
_)
START
SWITCH
PREHEAT
SWITCH
:,:--(
1 10
AMP
I
CIRCUIT
-
BREAKER
EXHAUST
TEMP.
WATER
TEMP.
OIL
PRESS.
SWITCH
SW.ITCH
SWITCH
-l...,;.,iWESTERBEKE
Engines&
Generators
GLOWPtVGS

Other manuals for Westerbeke 12.5 BTDA

Related product manuals