EasyManua.ls Logo

WinGD X92-B - Page 73

WinGD X92-B
460 pages
Print Icon
To Next Page IconTo Next Page
To Next Page IconTo Next Page
To Previous Page IconTo Previous Page
To Previous Page IconTo Previous Page
Loading...
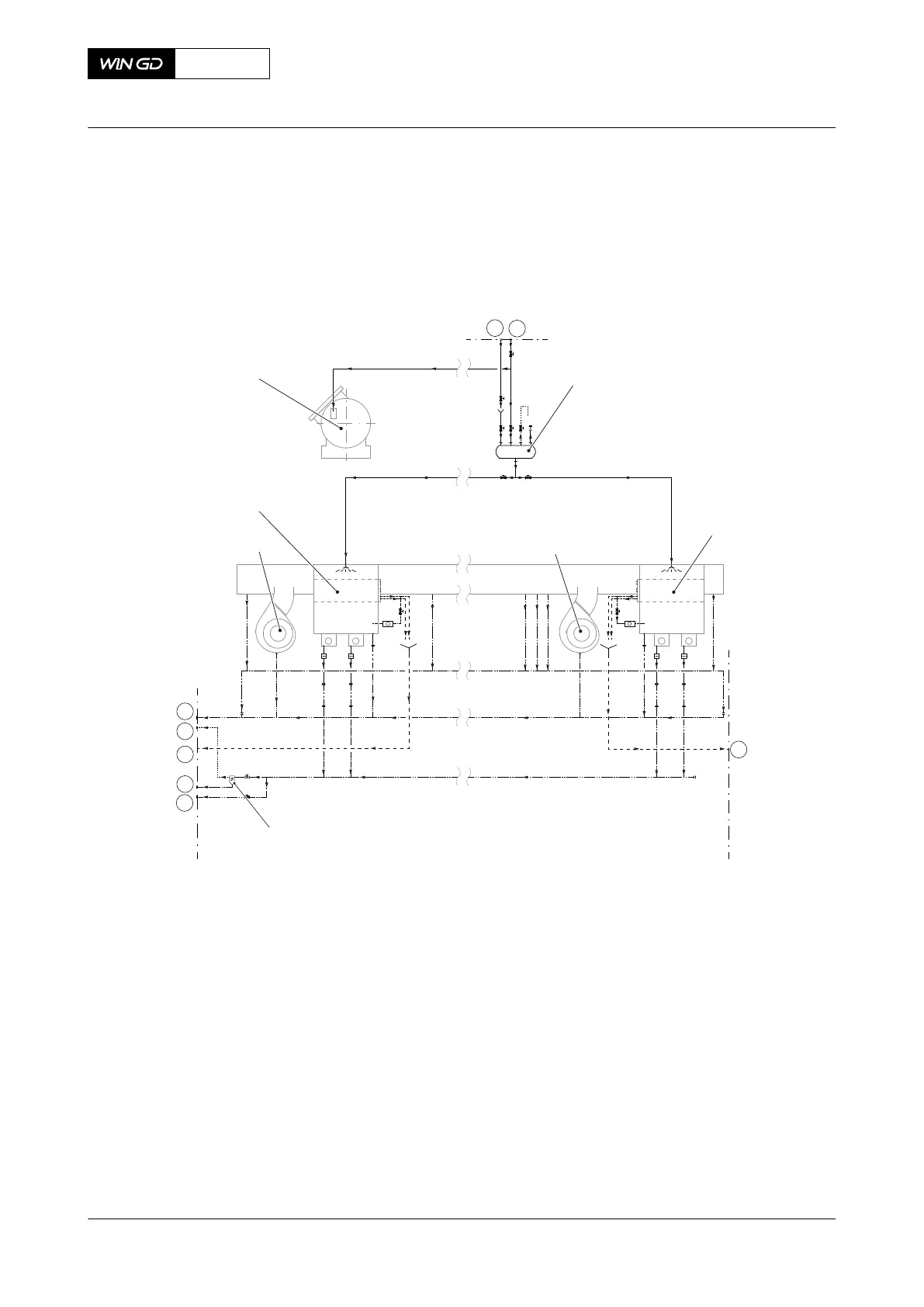
Fig 4-3 Wash-water system (generic and simplified)
11 12
PLANT
ENGINE
PLANT
ENGINE
13
18
16
06
17
06
005
002
002
003
003
001
004
Legend
001 Wash-water tank 004 Cyclone separator
002 Scavenge air cooler (SAC) 005 Turbocharger
003 Auxiliary blower
X92-B
AA00-0000-00AAA-043P-A
Operation Manual Wash-water system
Winterthur Gas & Diesel Ltd.
- 73 - Issue 002 2021-11

Table of Contents

Related product manuals