EasyManua.ls Logo

WinGD X92-B - Control Air System (Generic and Simplified)

WinGD X92-B
460 pages
Print Icon
To Next Page IconTo Next Page
To Next Page IconTo Next Page
To Previous Page IconTo Previous Page
To Previous Page IconTo Previous Page
Loading...
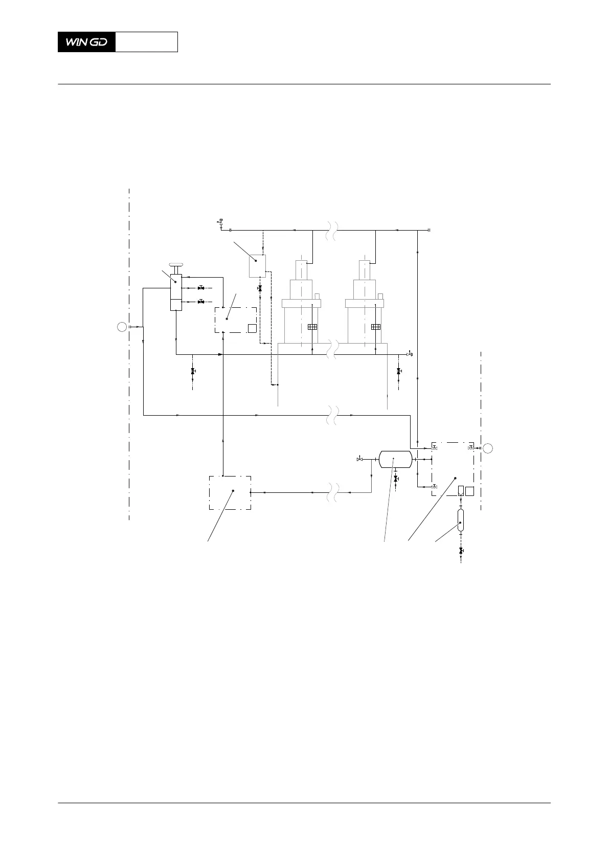
Fig 4-9 Control air system (generic and simplified)
40
PLANT
ENGINE
E
45
A3
A1
A2
A6
A
PLANT
ENGINE
007
006
005
001002003004
Cyl. 1 Cyl. n
Legend
001 Air bottle 005 Starting air shut-off valve
002 Control air supply 006 Valve unit for start
003 Air tank 007 Collector for leakage oil from the air spring
004 Disengaging device
X92-B
AA00-0000-00AAA-043T-A
Operation Manual Control air system
Winterthur Gas & Diesel Ltd.
- 85 - Issue 002 2021-11

Table of Contents

Related product manuals