EasyManua.ls Logo

WinGD X92-B - Starting Air System (Generic and Simplified)

WinGD X92-B
460 pages
Print Icon
To Next Page IconTo Next Page
To Next Page IconTo Next Page
To Previous Page IconTo Previous Page
To Previous Page IconTo Previous Page
Loading...
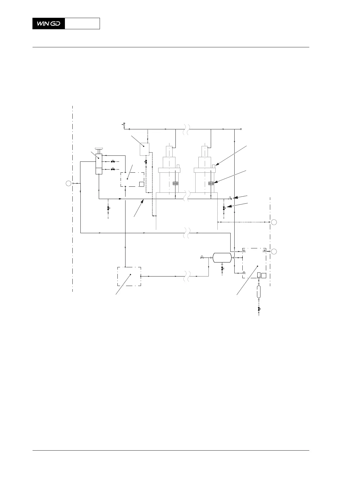
Fig 4-7 Starting air system (generic and simplified)
40
PLANT
ENGINE
E
45
41
A3
A1
A2
A6
A
PLANT
ENGINE
010
008
009
007
001
002
004
005006
Cyl. 1 Cyl. n
003
Legend
001 Solenoid valve 006 Disengaging device turning gear
002 Flame arrestor 007 Starting air supply pipe
003 Safety valve 008 Valve unit for start E
004 Drain valve 009 Starting air shut-off valve
005 Control air supply 010 Collector for leakage oil from the air spring
X92-B
AA00-0000-00AAA-043C-A
Operation Manual Starting air system
Winterthur Gas & Diesel Ltd.
- 81 - Issue 002 2021-11

Table of Contents

Related product manuals