EasyManua.ls Logo

Worcester 25/32 - Commissioning

Worcester 25/32
77 pages
Print Icon
To Next Page IconTo Next Page
To Next Page IconTo Next Page
To Previous Page IconTo Previous Page
To Previous Page IconTo Previous Page
Loading...
E
LECTRICS
E
LE
CTR
I
C
S
INSTALLATION & SERVICING INSTRUCTIONS FOR WORCESTER GREENSTAR CAMRAY KITCHEN 12/18-18/25-25/32
8 716 113 000a (01/07)
3
1
INSTALLATION
N1 1 2 3 4 5 6
7 8 9 10
F
H
G
1 2 3 4 5 6
C
2
1
R
S
P
Blue
Blue
Brown
Orange
Brown
Blue
Yellow/Green
Grey
White
Orange
V
T
= EARTH
= LIVE
= NEUTRAL
DANGER - 230V:
ISOLATE THE MAINS ELECTRICITY
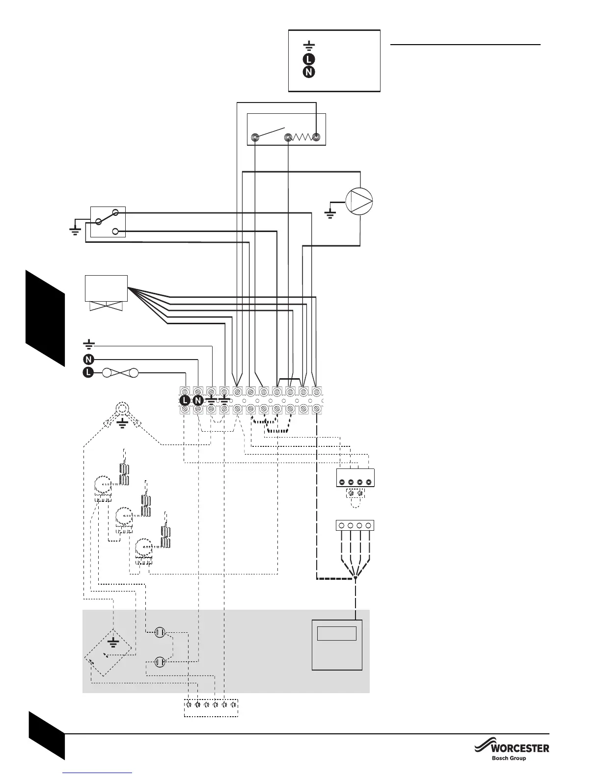
3 PORT VALVE CONTROL SET:
Key to components:
R - ROOM THERMOSTAT.
S - CIRCULATING PUMP.
F - INTERNAL PROGRAMMER CONNECTOR.
G-TERMINAL CONNECTOR BLOCK.
H - LINK CONNECTOR.
T - HOT WATER CYLINDER THERMOSTAT.
V - MID-POSITION VALVE.
P - OPTIONAL 230V WORCESTER
PROGRAMMER (fitted into fascia panel).
Terminator connector block (G):
4Remove link 1 to 3.
4Remove link 2 to 4.
4Make link 3 to 5.
Optional 230V Worcester (P):
4Set the pin on the rear of the programmer to
‘pumped’.
4Remove the link plug (H).
4Connect the plug from programmer (P) into
connector (F).
4Move the orange wire from terminal 9 to
terminal 6.

Related product manuals