EasyManua.ls Logo

YASKAWA SGMSS - Single-Phase 200 V, 50 W to 400 W Models

YASKAWA SGMSS
177 pages
To Next Page IconTo Next Page
To Next Page IconTo Next Page
To Previous Page IconTo Previous Page
To Previous Page IconTo Previous Page
Loading...
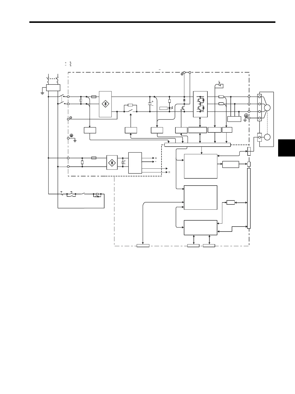
3.3 SERVOPACK Internal Block Diagrams
3-7
3
3.3.2 Single-phase 200 V, 50 W to 400W Models
Single-phase 200 V, 50 W to 400 W Model SGDS A∗∗A (=A5 to 04)
Single-phase
200 to 230 V
(50/60 HZ)
10
15
Surge
protector
Power
OFF
Power
ON
Open during
Servo alarm
ASIC
(PWM control, etc.)
Servomotor
Analog voltage
converter
Voltage
sensor
Gate drive over-
current protector
Gate
drive
Current
sensor
Dynamic
brake circuit
Noise
filter
Varistor
Varistor
Voltage
sensor
Relay
drive
Temperature
sensor
Control
power
supply
CN51
1KM
L1
B1/ B2
L2
L1C
L2C
U
V
W
15V
5V
12V
+5V
1KM
1KM
1Ry
CN2
PG
CHARGE
CN5
M
CPU
(Position/speed
calculation, etc.)
Digital Operator
Sequence I/O
FPGA (SynqNet
communications)
CN3 CN6A CN6B
SynqNet
External encoder
I/O
SIEPS80000025.book 7 ージ 20  

Table of Contents

Related product manuals