EasyManua.ls Logo

YASKAWA SGMSS - Typical Main Circuit Wiring Examples

YASKAWA SGMSS
177 pages
Print Icon
To Next Page IconTo Next Page
To Next Page IconTo Next Page
To Previous Page IconTo Previous Page
To Previous Page IconTo Previous Page
Loading...
5 Wiring
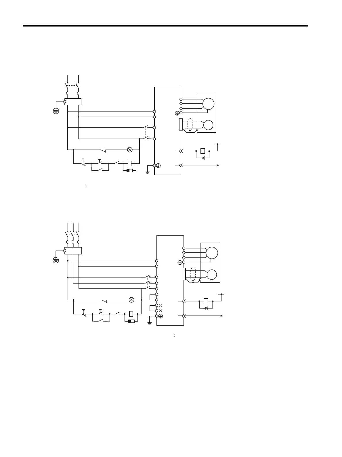
5.1.3 Typical Main Circuit Wiring Examples
5-4
5.1.3 Typical Main Circuit Wiring Examples
(1) Single-phase 100/200 V
(2) Three-phase 200 V
SERVOPACK
(For servo
alarm display)
Main
power supply
Main power
supply
: Indicator lamp
: Surge protector
: Flywheel diode
1PL
1PRT
1D
1QF
FIL
1KM
1Ry
Molded-case circuit breaker
: Noise filter
: Magnetic contactor
: Relay
L1
L1C
PG
SGDS-72A
U
V
W
M
ALM -SG
0 V
24
1Ry
ALM
13
14
1D
OFF
1KM
1Ry
ON
1KM
1PRT
1Ry
1KM
L2
L2C
CN1
1QF
R T
1PL
FIL
+24V
SERVOPACK
(For servo
alarm display)
Main power
supply
: Indicator lamp
: Surge protector
: Flywheel diode
1PL
1PRT
1D
1QF
FIL
1KM
1Ry
: Molded-case circuit breaker
: Noise filter
: Magnetic contactor
Relay
L1
L1C
PG
SGDS-72A
U
V
W
M
ALM-SG
0 V
24
1Ry
ALM
13
14
1D
OFF
1KM
1Ry
ON
1KM
1PRT
1Ry
1KM
L2
L3
B2
B3
L2C
CN1
1QF
R ST
1PL
FIL
+24V
1
2
Main
power supply
SIEPS80000025.book 4 ージ 20  

Table of Contents

Related product manuals