EasyManua.ls Logo

YASKAWA SGMSS - Three-Phase 200 V, 2.0 Kw; 3.0 Kw

YASKAWA SGMSS
177 pages
Print Icon
To Next Page IconTo Next Page
To Next Page IconTo Next Page
To Previous Page IconTo Previous Page
To Previous Page IconTo Previous Page
Loading...
3 SERVOPACK Specifications and Dimensional Drawings
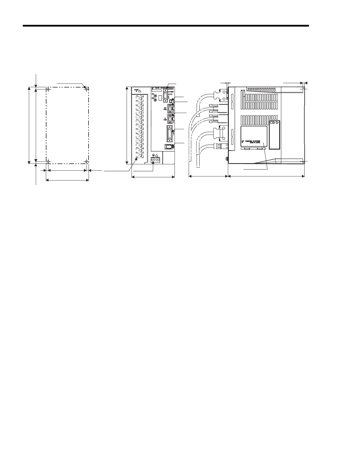
3.6.7 Three-phase
200 V, 2.0 kW / 3.0 kW
3-20
3.6.7
Three-phase
200 V, 2.0 kW / 3.0 kW
5
(0.20)
180 (7.09)
170±0.5 (6.69±0.02)
5.5
(0.22)
(5)
(0.20)
(Mounting pitch)
(Mounting pitch)
100 (3.94)
90±0.5
(3.54±0.02)
4-M4 screws
Mounting Hole Diagram
100 (3.94)
180 (7.09)
CN3
CN5
CN6A
CN6B
CN1
CN2
13 terminals
with M4
screws
Ground terminal
2
×
M4 screws
180 (7.09)
4 (0.16)
(75) (2.95)
Nameplate
Units: mm (in)
Approx. mass: 2.8 kg (6.17 lb)
(5) (0.20)
SIEPS80000025.book 20 ページ 2004年10月25日 月曜日 午前11時57分

Table of Contents

Related product manuals