EasyManua.ls Logo

YASKAWA SGMSS - Classification Table; Dimensional Drawings of SERVOPACK Model SGDS-; Dimensional Drawings of SERVOPACK Model SGDS- 72; Single-Phase 100 V;200 V, 50 W;100 W;200 W

YASKAWA SGMSS
177 pages
Print Icon
To Next Page IconTo Next Page
To Next Page IconTo Next Page
To Previous Page IconTo Previous Page
To Previous Page IconTo Previous Page
Loading...
3.6 Dimensional Drawings of SERVOPACK Model SGDS-72
3-17
3
3.6 Dimensional Drawings of SERVOPACK Model SGDS-72
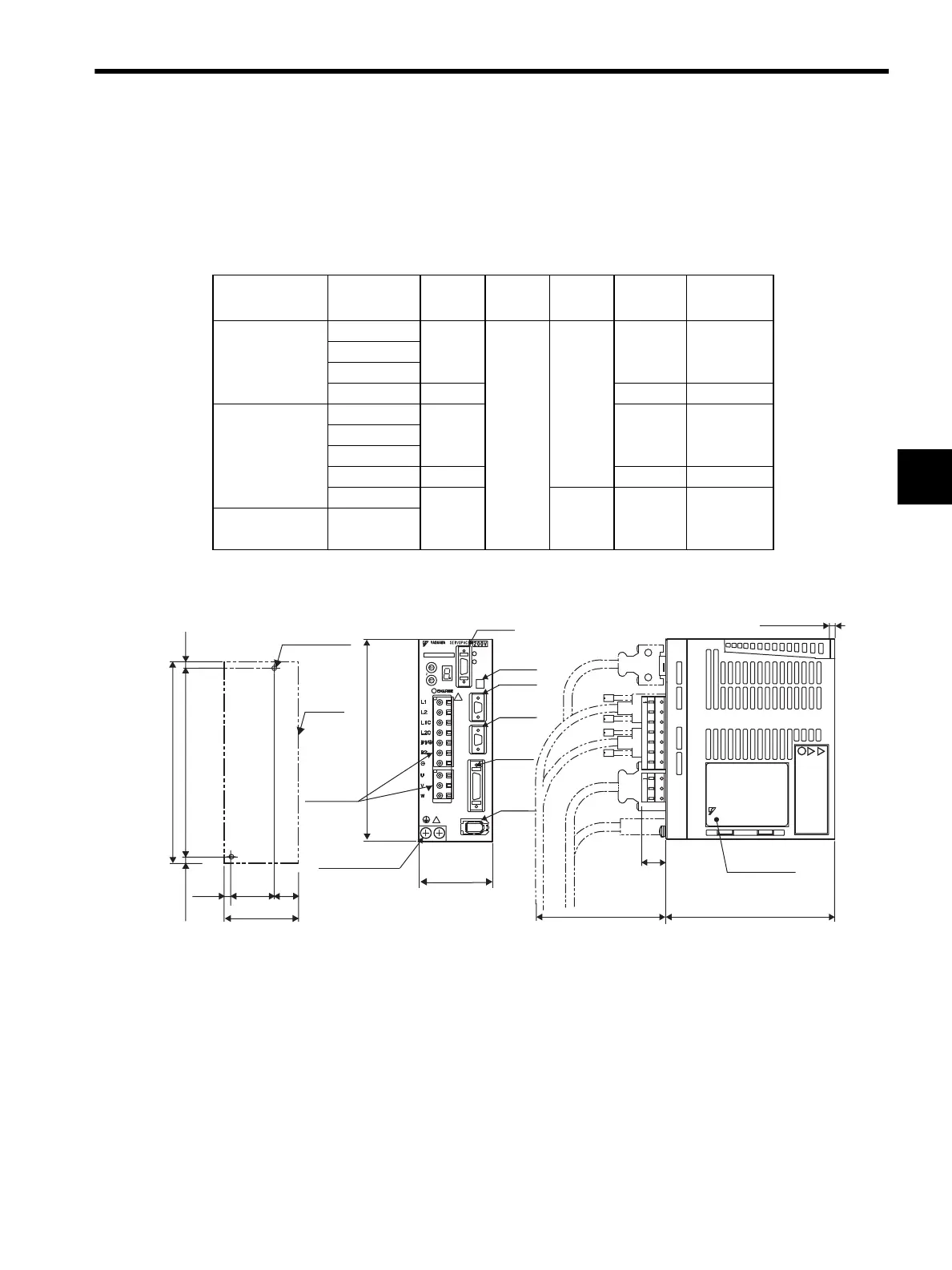
3.6.1 Classification table
SERVOPACK dimensional drawings are grouped according to the mounting method and capacity.
• Base-mounted type
3.6.2 Single-phase 100 V/200 V, 50 W/100 W/200 W
Power Supply
Voltage
Capacity Width
[mm]
Height
[mm]
Depth
[mm]
Volume
[mm
3
]
Reference
Section
Single-phase
100 V
50 W 55 150 130 1073 3.6.2
100 W
200 W
400 W 70 1463 3.6.3
Single-phase
200 V
50 W 55 1073 3.6.2
100 W
200 W
400 W 75 1463 3.6.3
750 W 70 180 1890 3.6.4
Three-phase
200 V
1.0 kW
Units: mm (in)
Approx. mass: 1.0 kg (2.20 lb)
CN5
CN6A
CN6B
CN3
CN1
CN2
18
(0.71)
Nameplate
2
×
M4 screws
Outline
Terminals
130 (5.12)
100 (3.94)
55 (2.17)
150 (5.91)
(4.5) (1.78)
Mounting Hole Diagram
32±0.5
(1.26±0.02)
5
(0.20)
55 (2.17)
(18) (0.71)
139.5±0.5 (5.49±0.02)
150 (5.91)
5.5
(0.22)
(5) (0.20)
(Mounting pitch)
(Mounting pitch)
C
N
2
C
N
1
C
V
L
N
K
L
N
K
P
T
R
C
N
5
C
N
3
OUT
CN6A
POWER
IN
CN6B
ALM
SGDS-
SW1
SW
YASKAWA ELECTRIC
MADE IN JAPAN
0
1
2
3
4
5
6
7
8
9
0
1
2
3
4
5
6
7
8
9
Ground terminal
2
×
M4 screws
SIEPS80000025.book 17 ページ 2004年10月25日 月曜日 午前11時57分

Table of Contents

Related product manuals