EasyManua.ls Logo

YASKAWA SGMSS - Single-Phase 100 V, 400 W; Single-Phase 200 V, 400 W

YASKAWA SGMSS
177 pages
Print Icon
To Next Page IconTo Next Page
To Next Page IconTo Next Page
To Previous Page IconTo Previous Page
To Previous Page IconTo Previous Page
Loading...
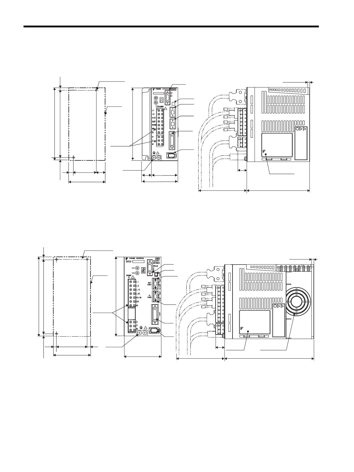
3 SERVOPACK Specifications and Dimensional Drawings
3.6.3 Single-phase 200 V, 400 W
3-18
3.6.3 Single-phase 200 V, 400 W
3.6.4 Single-phase 100 V, 400 W
CAD
未完
Units: mm (in)
Approx. mass: 1.4 kg (3.09 lb)
CN5
CN6A
CN6B
CN3
CN1
CN2
2
×
M4 screws
Outline
Terminals
75 (2.95)
55 (2.17)
20
(0.79)
150 (5.91)
47±0.5
(1.85±0.02)
10
(0.39)
75 (2.95)
(18) (0.71)
139.5±0.5 (5.49±0.02)
150 (5.91)
5.5
(0.22)
(5) (0.20)
(Mounting pitch)
(Mounting pitch)
Ground
terminal
2
×
M4
screws
Mounting Hole Diagram
C
N
2
C
N
1
C
V
L
N
K
L
N
K
P
T
R
C
N
5
C
N
3
OUT
CN6A
POWER
IN
CN6B
ALM
SGDS-
SW1
SW
0
1
2
3
4
5
6
7
8
9
0
1
2
3
4
5
6
7
8
9
18
(0.71)
Nameplate
130 (5.12)100 (3.94)
(4.5) (1.78)
YASKAWA ELECTRIC
MADE IN JAPAN
Units: mm (in)
Approx. mass: 1.2 kg (2.65 lb)
180 (7.09)
(4) (0.16)
YASKAWA ELECTRIC
MADE IN JAPAN
2
×
M4 screws
Outline
58±0.5
(2.28±0.02)
6
(0.24)
70 (2.76)
(6)
(0.24)
139.5±0.5 (5.49±0.02)
150 (5.91)
5.5
(0.22)
(5) (0.20)
(Mounting pitch)
(Mounting pitch)
Mounting Hole Diagram
CN5
CN6A
CN6B
CN3
CN1
CN2
Terminals
70 (2.76)
150 (5.91)
0
1
2
3
4
5
6
7
8
9
A
B
C
D
E
F
0
1
2
3
4
5
6
7
8
9
A
B
C
D
E
F
Ground
terminal
2 × M4
screws
Cooling fan
Name-
plate
18
(0.71)
100 (3.94)
SIEPS80000025.book 18 ページ 2004年10月25日 月曜日 午前11時57分

Table of Contents

Related product manuals