EasyManua.ls Logo

ABB AV410 - Installing the Sensor

ABB AV410
64 pages
Print Icon
To Next Page IconTo Next Page
To Next Page IconTo Next Page
To Previous Page IconTo Previous Page
To Previous Page IconTo Previous Page
Loading...
34
…6 INSTALLATION
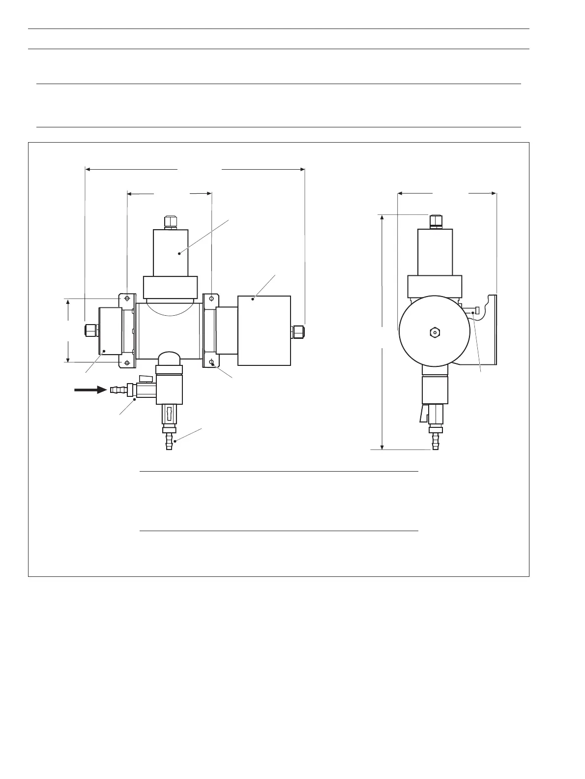
Fig. 6.4 7320 100 Low Range Sensor – Overall Dimensions and Mounting Details
6.3 Installing the Sensor – Figs. 6.4 and 6.5
Notes.
Use flexible plastic or rigid PVC, polypropylene or metal connecting pipework, depending on the installation.
Fit isolating valves to enable removal of the sensor.
Dimensions in mm (in.)
Note. For maintenance purposes, allow the following minimum
clearances around the sensor:
Left (for receiver module removal) 100 mm (3.94 in.)
Right (for emitter module removal) 100 mm (3.94 in.)
Top (for cleaner module removal) 200 mm (7.87 in.)
410
(16.14)
327 (12.87)
155 (6.1)
between
centers
118
(4.64)
162 (6.3)
Four holes ø6 (0.24)
for mounting
Sample Inlet
(12 i.d. [0.47] flexible
hose connection)
Drain
(12 i.d. [0.47] flexible
hose connection)
Sample Outlet
(6 [0.24] i.d.
tube connection)
Cleaner Module
Receiver Module
Emitter Module

Related product manuals