EasyManua.ls Logo

ABB REF615 - Page 54

ABB REF615
240 pages
Print Icon
To Next Page IconTo Next Page
To Next Page IconTo Next Page
To Previous Page IconTo Previous Page
To Previous Page IconTo Previous Page
Loading...
A071332 V4 EN
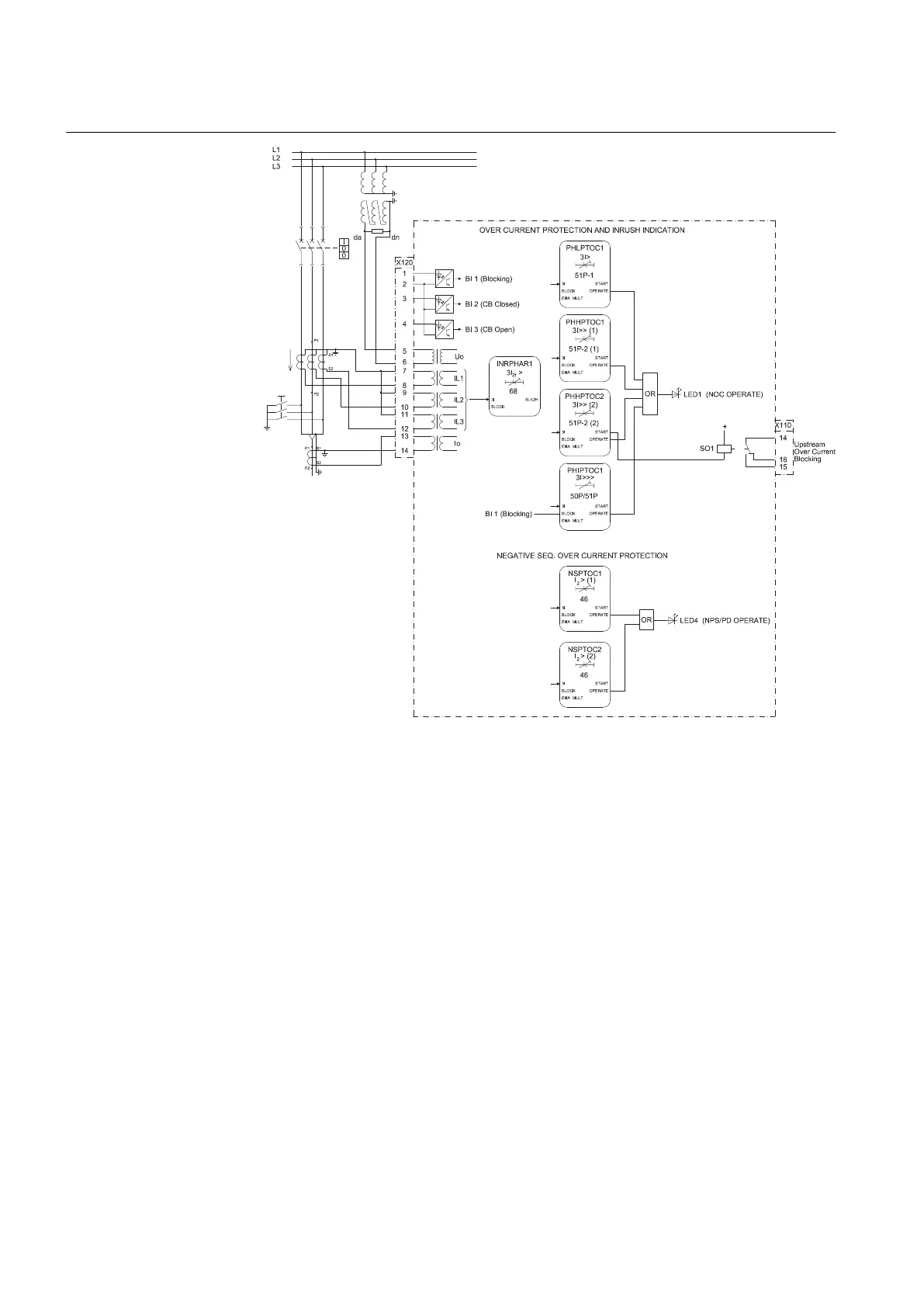
Figure 17: Overcurrent protection
Four overcurrent stages are offered for overcurrent and short-circuit protection. The
instantaneous stage (PHIPTOC1) can be blocked by energizing the binary input 1
(X120:1-2). Two negative sequence overcurrent stages (NPSTOC1 and NPSTOC2)
are offered for phase unbalance protection. The inrush detection block’s
(INRPHAR1) output BLK2H caters the possibility to either block the function or
multiply the active settings for any of the shown protection function blocks.
All operate signals are connected to the Master Trip and also to the alarm LEDs. LED
1 is used for overcurrent and LED 4 for negative sequence overcurrent protection
operate indication. LED 4 is also used for phase discontinuity protection operate
indication.
The upstream blocking from the start of the overcurrent second high stage
(PHHPTOC2) is connected to the output SO1 (X110:14-16). This output is used for
sending a blocking signal to the relevant overcurrent protection stage of the IED at
the infeeding bay.
Section 3 1MRS756378 D
REF615 variants
48 REF615
Application Manual

Table of Contents

Other manuals for ABB REF615

Related product manuals