EasyManua.ls Logo

Allen-Bradley PowerFlex 755T - Page 47

Allen-Bradley PowerFlex 755T
192 pages
Print Icon
To Next Page IconTo Next Page
To Next Page IconTo Next Page
To Previous Page IconTo Previous Page
To Previous Page IconTo Previous Page
Loading...
Rockwell Automation Publication 750-IN100B-EN-P - July 2017 47
Prepare for Installation Chapter 3
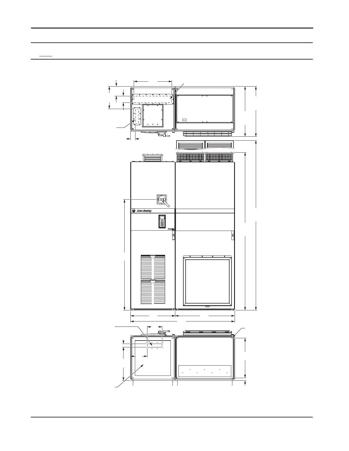
Frame 9 Bus Supplies Top, Front, Bottom, and Side Views - Dimensions are mm (in.)
See page 51 for optional entry wire bay dimensions.
0 (0)
535 (2.1)
451
(17.8)
45
(1.8)
200
(7.9)
600
(23.6)
1495
(58.9)
66
(2.6)
301
(11.9)
128
(5.0)
90
(3.5)
512
(20.2)
225
(8.9)
400 (15.7)
1135 (44.7)
1406
(55.4)
800
(31.5)
36
(1.4)
535
(21.1)
IP21, UL Type 1
2132
(83.9)
IP54, UL Type 12
2291
(90.2)
IP21, UL Type 1
676
(26.6)
IP54, UL Type 12
721
(28.4)
Input Power Cables - Top Entry
Signal Cables - Top Entry
Dimensions same as bottom.
Signal Cables - Bottom Entry
Mounting Holes
Input Power Cables - Bottom Entry
Power BayInput Bay

Table of Contents

Other manuals for Allen-Bradley PowerFlex 755T

Related product manuals