EasyManua.ls Logo

Allen-Bradley SLC 500 - Page 90

Allen-Bradley SLC 500
294 pages
Print Icon
To Next Page IconTo Next Page
To Next Page IconTo Next Page
To Previous Page IconTo Previous Page
To Previous Page IconTo Previous Page
Loading...
Publication 1747-UM011G-EN-P - June 2008
90 Identifying the Components of Your Processor
multi-point list.
UL listed to US and Canadian Safety Standards, CE compliant,
C-Tick marked.
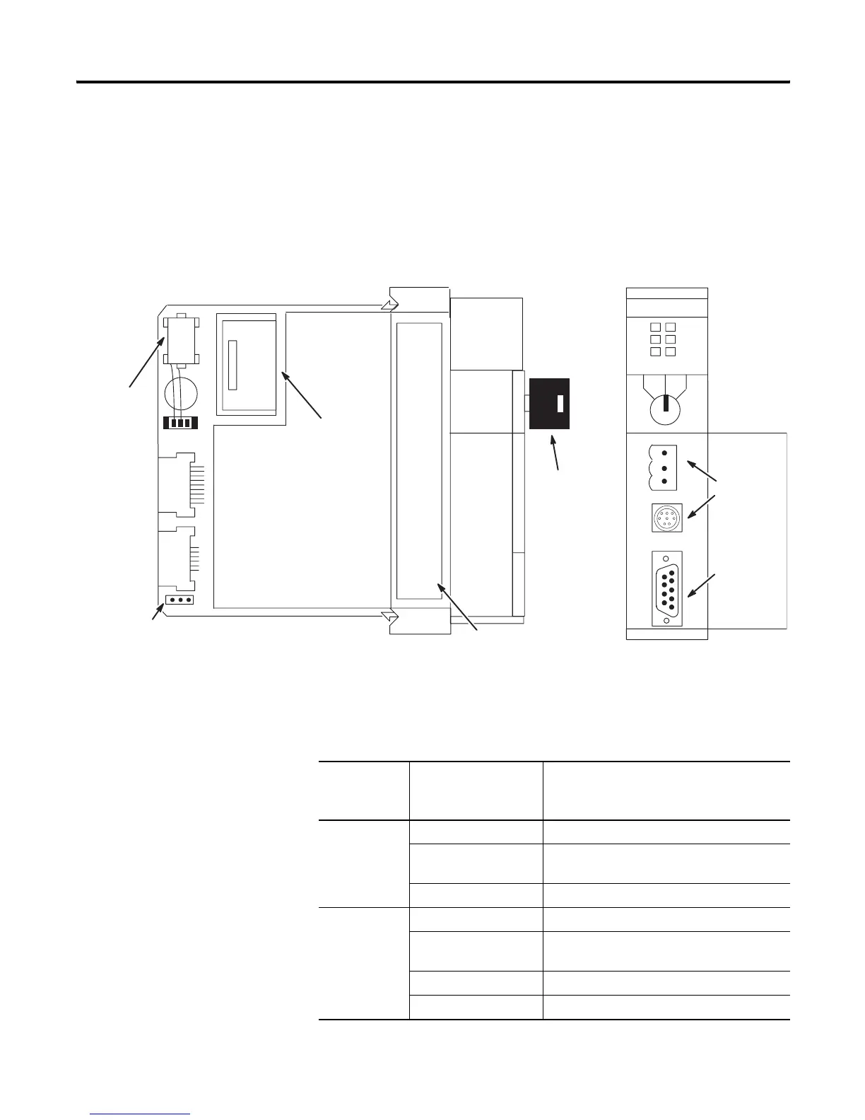
This figure below shows some of the hardware components of the
SLC 5/04 processors (1747-L541, 1747-L542, or 1747-L543).
SLC 5/04 Hardware Components
The table below provides a general explanation of each processor
status indicator on the SLC 5/04 processors.
SLC 5/04 Status Indicators
FORCE
DH+
RS232
RUN
FLT
BATT
RUN REM PROG
SLC 5/04 CPU
Memory
Module
Left Side View Front View
DH-485, DF1,
or ASCII
Channel 0
Battery
(provides
back-up
power for the
CMOS RAM)
Serial Number and
Catalog Number
DH+
Channel 1
Keyswitch
Operating System Download Protection Jumper
– do not move unless updating processor
Operating System firmware.
Processor
Status
Indicator
(1)(2)
When It Is Indicates that
RUN
(Color: green)
On (steady) The processor is in the Run mode.
Flashing (during
operation)
The processor is transferring a program from
RAM to the memory module.
Off The processor is in a mode other than Run.
FLT
(Color: red)
Flashing (at power up) The processor has not been configured.
Flashing (during
operation)
The processor detects a major error either in
the processor, chassis, or memory.
On (steady) A fatal error is present (no communication).
Off There are no errors.

Table of Contents

Other manuals for Allen-Bradley SLC 500

Related product manuals