EasyManua.ls Logo

Ampac EvacU - Multiple Amplifiers - Firefinder

Ampac EvacU
61 pages
Print Icon
To Next Page IconTo Next Page
To Next Page IconTo Next Page
To Previous Page IconTo Previous Page
To Previous Page IconTo Previous Page
Loading...
Page 43
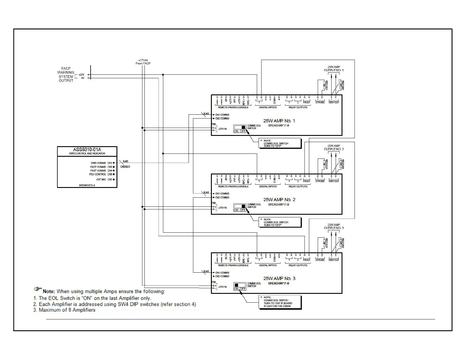
11.6 Multiple Amplifiers – FireFinder

Table of Contents

Related product manuals