EasyManua.ls Logo

Anritsu MS2665C - Page 104

Anritsu MS2665C
279 pages
Print Icon
To Next Page IconTo Next Page
To Next Page IconTo Next Page
To Previous Page IconTo Previous Page
To Previous Page IconTo Previous Page
Loading...
SECTION 4 SOFT-KEY MENU
4-41
Check
Pass/Fail
*
Move Mask
return
*
Select
Mask Table
*
Setup
Mask Table
Mask Meas
return
*
Mask-5
*
Mask-1
*
Mask-2
*
Mask-3
*
Mask-4
Select
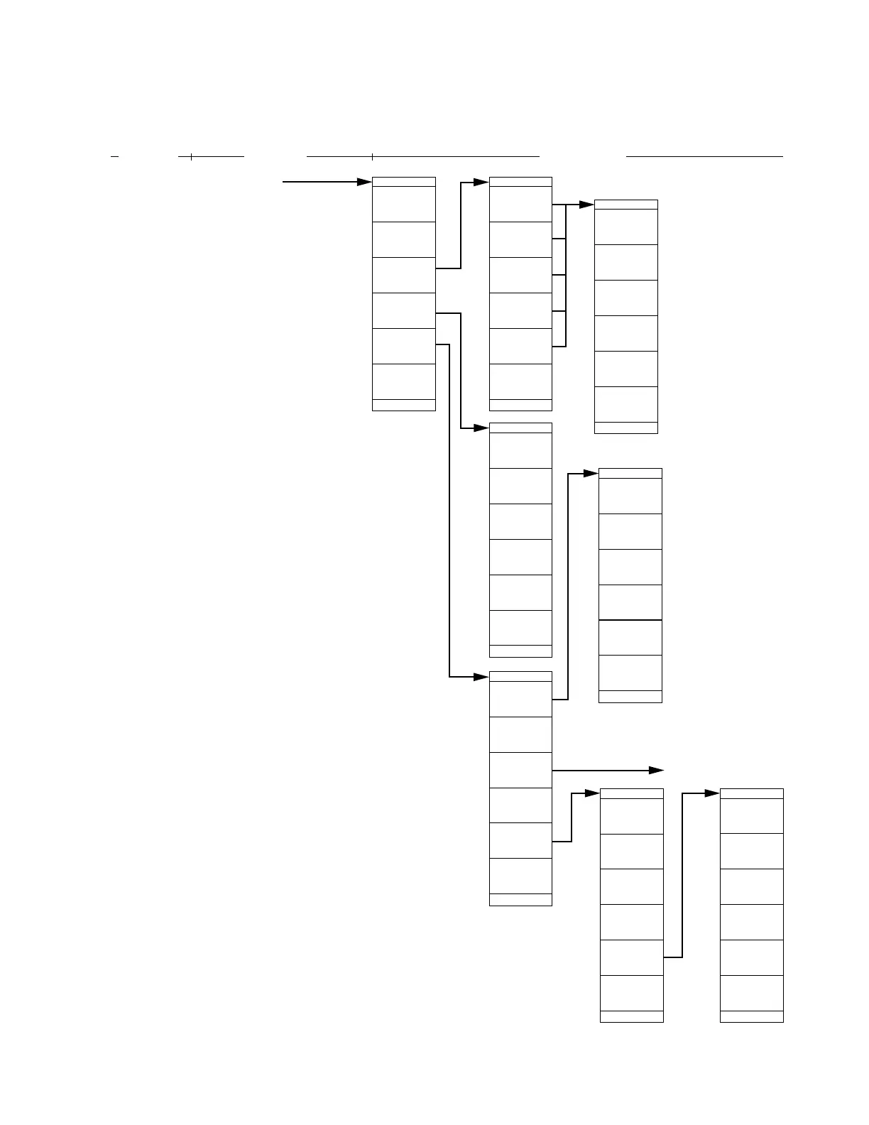
MS2667C/68C Menu Tree (9/25)
Panel Key
Top menu
(Previous Page)
<Mask Edit Screen>
Lower menues
return
*
Load/Save
Media
Save
Mask Table
Load/Save
*
Select
Mask Table
*
Make Up
Mask Table
return
*
Load/Save
Mask Table
Serup Mask
Mask-1
Mask-2
Mask-3
Mask-4
return
Mask-5
Select
Move x
12.34 kHz
Move y
5.12 dB
Update
Mask Table
return
Cancel
Move Mask
Directory
Display
/Next
Load
Mask Table
Absolute
Level
Relative
Detail
Dir Disp
Outline
return
Line
Lower
Limit 1
On Off
Upper
Limit 1
On Off
Upper
Limit 2
On Off
Lower
Limit 2
On Off
return
Media
(Lower
Mem Card-2
Slot)
(Upper
Mem Card-1
Slot)

Table of Contents

Other manuals for Anritsu MS2665C

Related product manuals