EasyManua.ls Logo

Answer Drives GT3000 - Page 52

Answer Drives GT3000
128 pages
Print Icon
To Next Page IconTo Next Page
To Next Page IconTo Next Page
To Previous Page IconTo Previous Page
To Previous Page IconTo Previous Page
Loading...
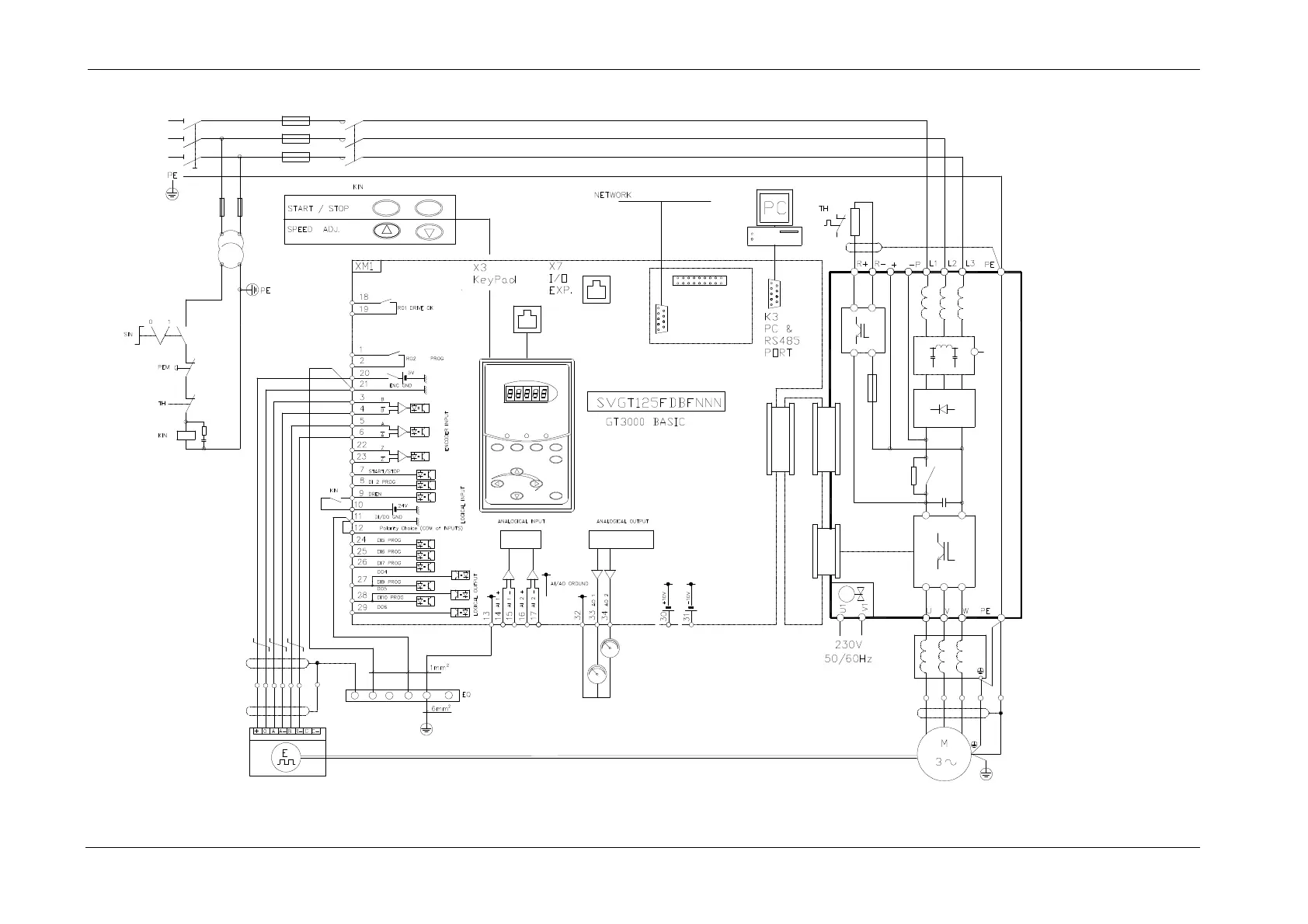
GT3000 Installation
40 IMGT30004EN
Connection example: GT3000 to microprocessor basic control board
SHIFT
ON
REMOTE CONTROL OPERATOR
STOP
RUN
Enter
RESET
Canc.
AUTOMAN
Fault
STOPMAN