EasyManua.ls Logo

Ariston GENUS PREMIUM EVO 24

Ariston GENUS PREMIUM EVO 24
88 pages
To Next Page IconTo Next Page
To Next Page IconTo Next Page
To Previous Page IconTo Previous Page
To Previous Page IconTo Previous Page
Loading...
Training manual ALTEAS & GENUS ONE
Page. 61 of 88
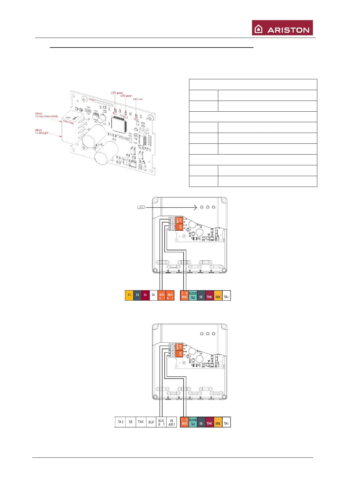
7.3 DECUPLING CLIP-IN FOR SOLAR MANAGER AND HYBRID CONNECTION
When solar manager or Hybrid are connected through bus to the boiler, the error 804 is displayed.
To solve this error, it need to install the “Decupling clip-in” on the bus net between the boiler and the solar
manager and hybrid module.
GREEN LED (left)
Off
Electrical supply OFF (via bus)
Fix
Electrical supply ON (via bus)
GREEN LED (centre)
Off
No bus communication
Fix
Bus communication ok
Blinking
Initialization (bus device search)
RED LED (right)
Off
Normal working
Fix
Decupling clip-in in error
BOILER
HYBRID
BOILER
SOLAR MANAGER

Table of Contents

Other manuals for Ariston GENUS PREMIUM EVO 24

Related product manuals