EasyManua.ls Logo

BERTHOLD TECHNOLOGIES LB 444 - 13 Dimensional Drawings; Detectors

Default Icon
127 pages
Print Icon
To Next Page IconTo Next Page
To Next Page IconTo Next Page
To Previous Page IconTo Previous Page
To Previous Page IconTo Previous Page
Loading...
04/03 347 LB 444
95
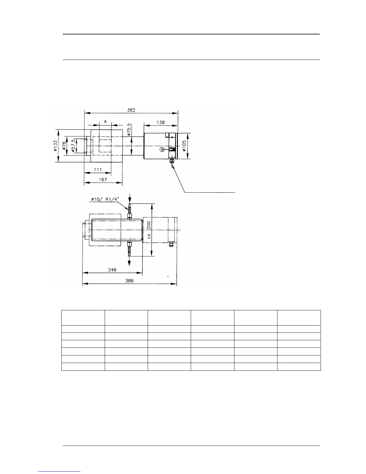
13. Dimensional Drawings
13.1 Detectors
Type Ident # Crystal a b Weight
approx. kg
LB 5441-01 32732 25/25 X 18
LB 5441-02 32733 40/35 X 18
LB 5441-03 32734 50/50 X 18
LB 4441-01 32717 25/25 X X 18
LB 4441-02 32718 40/35 X X 18
LB 4441-03 32719 50/50 X X 18
*) EEx de IIc T6 / EEx de [ib] II C
M 16 for cable 7...10 mm
M 12 for cable 4...6 mm
WITH water cooling

Table of Contents

Related product manuals