EasyManua.ls Logo

Blastrac 500 E Global - Page 84

Blastrac 500 E Global
108 pages
Print Icon
To Next Page IconTo Next Page
To Next Page IconTo Next Page
To Previous Page IconTo Previous Page
To Previous Page IconTo Previous Page
Loading...
Revision
Revision
Revision
Revision
7
0
Start
Eng.
Print
Status
1
07.02.2005
RJO
07.12.2005
AsBuilt
USFEBEB.V.
500SBUL
2 3 4
MainVoltage
5 6
Arch.nr.
Draw.nr.
PJ05.02566T1A
PJ05.02566T1A
7 8
Pages
=
+
13
Page
9
9
8
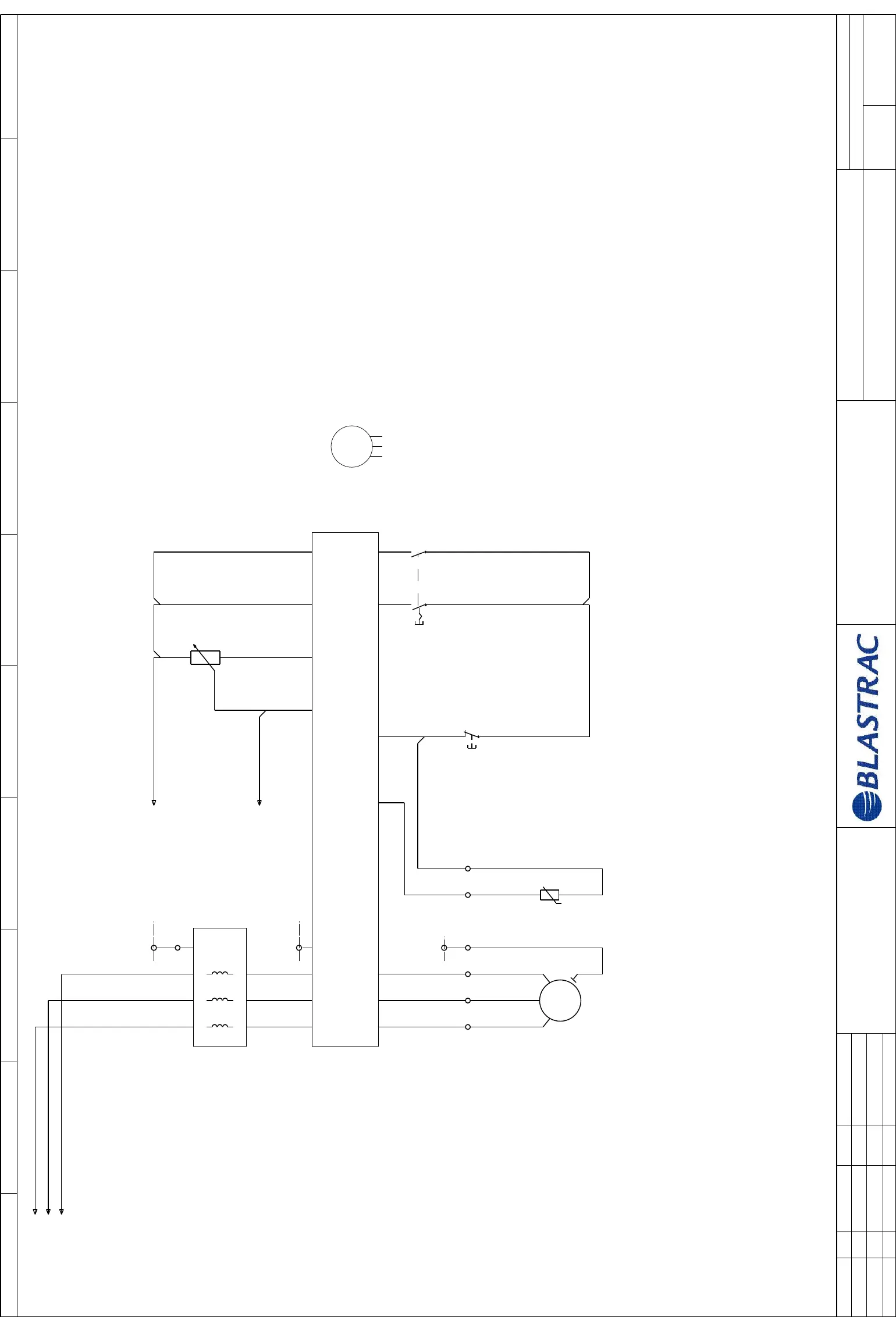
7.9/ 9KM2L1
7.9/ 9KM2L2
7.9/ 9KM2L3
56
59
62
8L1
EZN3A1500H003
8U1
Lenze
E82EV75148200
L1
L1.1
57
L1
U
58
CON2 1
M
3~
8M1
U V W
¤
RightMotor
L2
L2.1
60
L2
V
61
2
L3
L3.1
63
L3
W
64
3
¤
PE
PE.1
¤
¤
¤ 5
PTC
T1
T2
PTC
6
67
7.6/ 739
7.6/ 9P1
28
68
20
Stop
8S2
11
12
Speed
10k
8R1
51
8/Gr
70
72
9/Gr
52
7/Br
E3
73
R0F
8S1
13
14
52
39/Wi
E4
74
23
24
72Green
51Green
52Brown
Potmeter

Table of Contents