EasyManua.ls Logo

Bosch CF Series - Page 97

Bosch CF Series
112 pages
Print Icon
To Next Page IconTo Next Page
To Next Page IconTo Next Page
To Previous Page IconTo Previous Page
To Previous Page IconTo Previous Page
Loading...
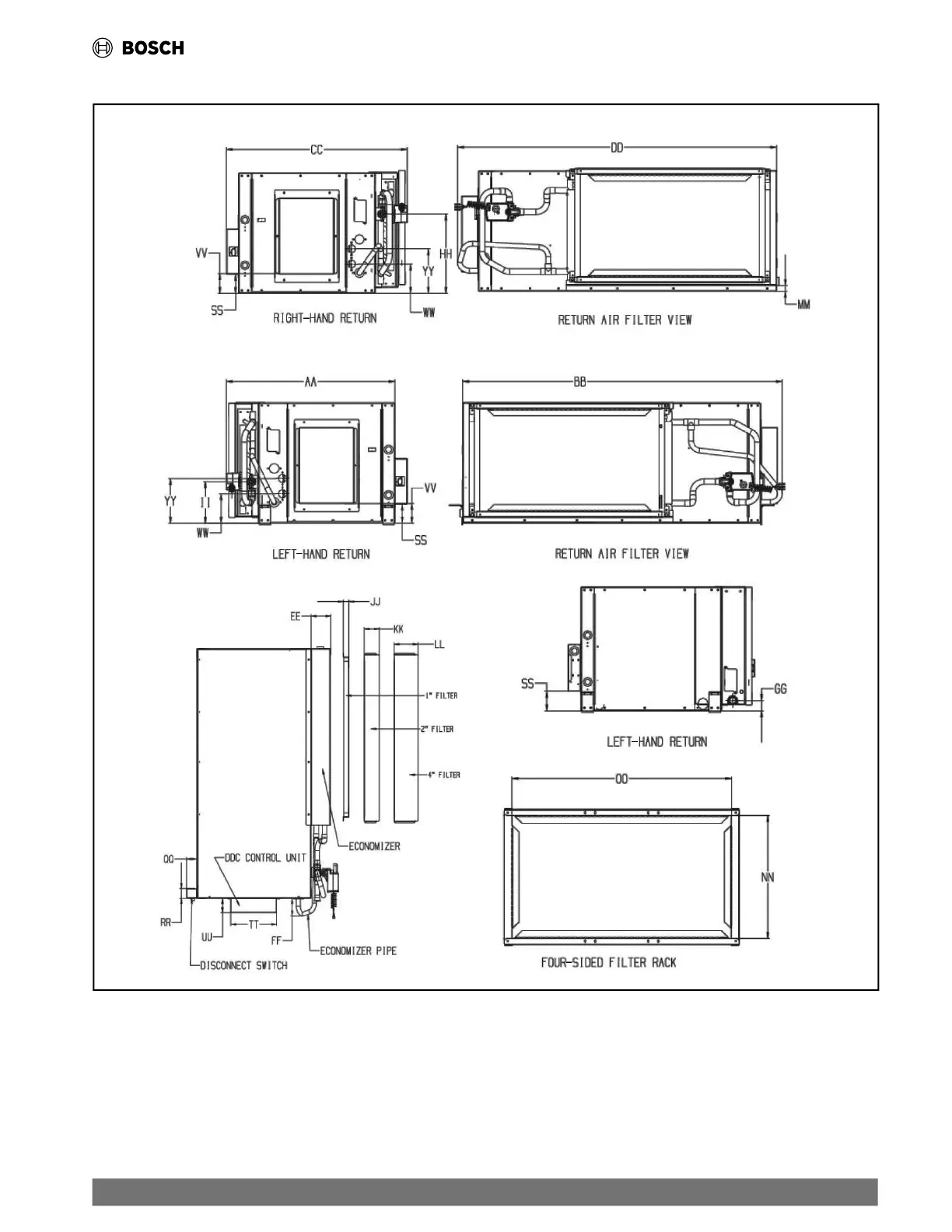
Dimensional Drawings
Fig. 44 Horizontal (HZ) Cabinet Options Drawing
| 97
CF Series Heat Pumps — 8733846299 (2024/11)

Table of Contents

Related product manuals