EasyManua.ls Logo

CAME FROG-MD - Page 53

CAME FROG-MD
64 pages
Go to English
Print Icon
To Next Page IconTo Next Page
To Next Page IconTo Next Page
To Previous Page IconTo Previous Page
To Previous Page IconTo Previous Page
Loading...
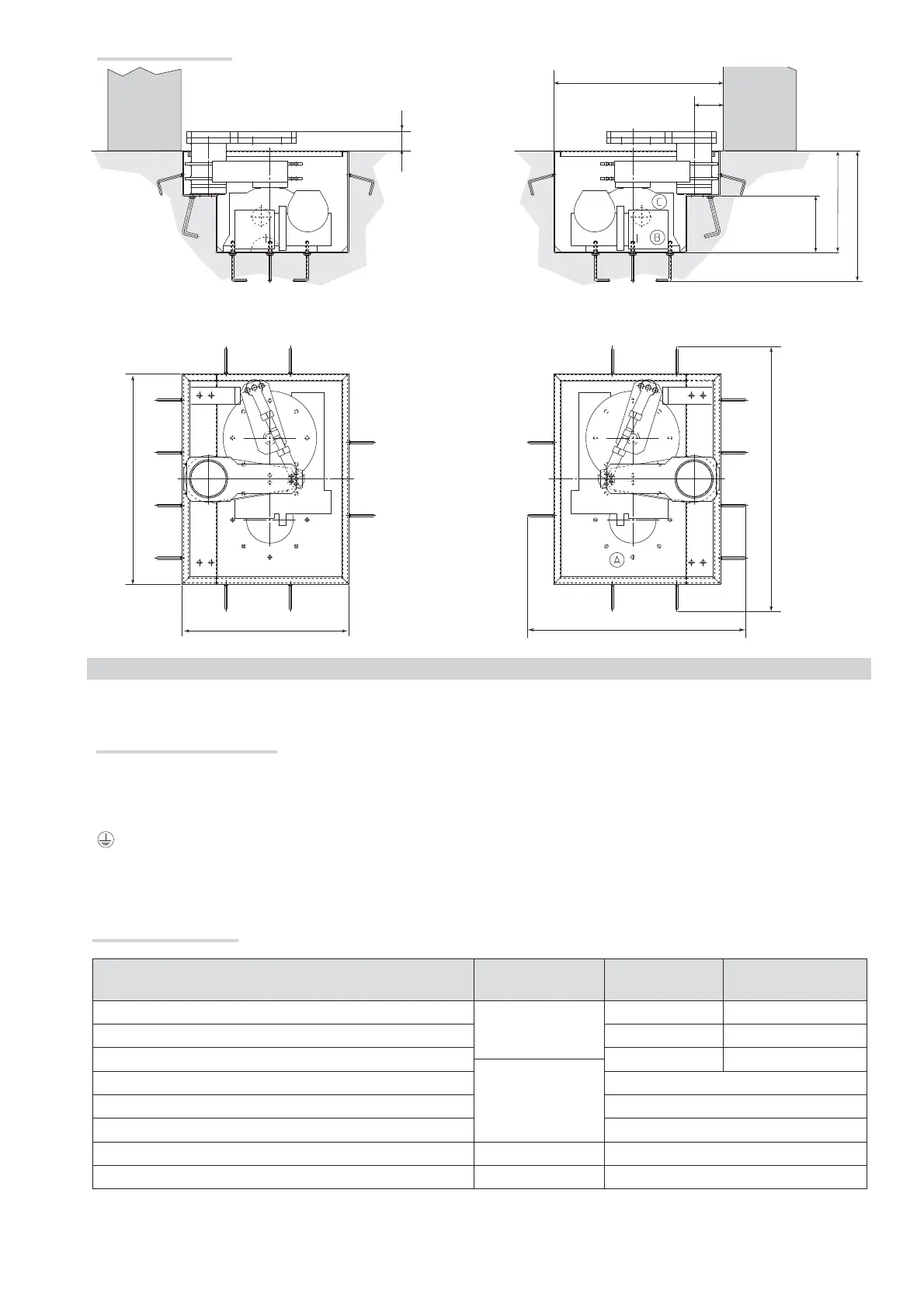
447.5
350
195
580
100
64
720
570
~ 850
~ 1000
Стр
.
5
5 -
Код руководства:
FA00598-RU
FA00598-RU вер.
1
1 05/2018
© CAME S.p.A.
Компания
CAME S.p.A.
сохраняет за собой право на изменение содержащейся в этой инструкции информации в любое время и без предварительного уведомления.
ОБЩИЕ ИНСТРУКЦИИ ПО МОНТАЖУ
Монтаж должен производиться квалифицированным персоналом в полном соответствии с требованиями действующих норм
безопасности.
Предварительные проверки
⚠
Перед началом монтажных работ выполните следующее:
• Убедитесь в том, что питание блока управления осуществляется от отдельной линии с соответствующим автоматическим выключателем с
расстоянием между контактами не менее 3 мм.
• Приготовьте каналы для проводки кабеля, гарантирующие надежную защиту от механических повреждений.
• Подготовьте дренажную систему, которая позволит избежать застоя воды, способного привести к окислению используемых материалов.
Убедитесь в том, чтобы между соединениями кабеля и другими токопроводящими частями была предусмотрена дополнительная
изоляция.
• Проверьте, чтобы конструкция ворот была достаточно прочной, петли находились в исправном состоянии, а между подвижными и
неподвижными механизмами системы не было трения.
• Проверьте наличие механических упоров для створок в крайних положениях открывания и закрывания.
Тип и сечение кабелей
Подключение Тип кабеля
Длина кабеля
10 < 20 м
Длина кабеля
20 < 30 м
Питание блока управления, ~230 В
H05RN-F
3G x 1,5 мм
2
3G x 2,5 мм
2
Электропитание привода ~230 В 4G x 1,5 мм
2
4G x 2,5 мм
2
гнальная лампа 2 x 0,5 mm
2
2 x 1,5 mm
2
FROR CEI 20-22
CEI EN
50267-2-1
Фотоэлементы (передатчики) 2 x 0,5 мм
2
Фотоэлементы (приемники) 4 x 0,5 мм
2
Устройства управления и безопасности 2 x 0,5 мм
2
Энкодер ВИТОЙ КАБЕЛЬ 30 м (макс.)
Антенна RG58 10 м (макс.)
Важное примечание: если длина кабеля отличается от приведенной в таблице, его сечение определяется на основании реального
потребления тока подключенными устройствами и в соответствии с указаниями, содержащимися в нормативе CEI EN 60204-1.
Для последовательных подключений, предусматривающих большую нагрузку на тот же участок цепи, значения в таблице должны быть
пересмотрены с учетом реальных показателей потребления и фактических расстояний. При подключении устройств, не рассматриваемых в
данной инструкции, следует руководствоваться технической документацией на соответствующее изделие.
Габаритные размеры

Related product manuals