EasyManua.ls Logo

Certikin MB35S - INSTALLATION OF HEATER (cont.); Heater Dimensions and Connections; Wall Terminal Installation Details

Default Icon
36 pages
Print Icon
To Next Page IconTo Next Page
To Next Page IconTo Next Page
To Previous Page IconTo Previous Page
To Previous Page IconTo Previous Page
Loading...
Condensing Pool Heater Genie S
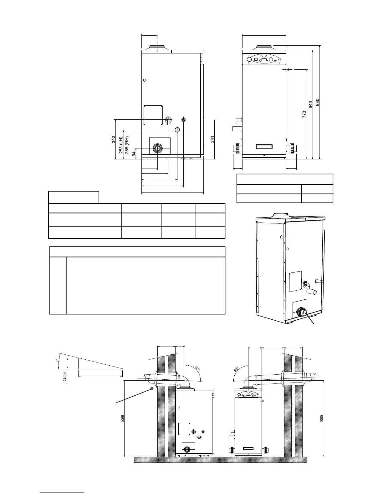
Heater Dimensions
Pipe Connections
& Locations
8
Fig. 3.1
Dimensions
Model A B C
Genie 20 / 35 138mm 226mm 361mm
Genie 50 170mm 258mm 425mm
D
E
Connections
D Multi Heater Connection
E Electric & External Control (CCP01)
F Gas Supply - 22mm Copper
G Safety Valve Outlet - 15mm Copper
H Condensate Drain - 1¼” or 40mm Hunter Plastic
I From Pool - 1½” / 50 mm Plastic Demountable Fittings
Fig. 3.2
Service Access
Left, Right or Above 300mm
In Front 800mm
Rear Flue Left/Right Flue
Horizontal Wall Terminal
Dimensions
Horizontal Wall Terminal
(MBHT)
F
G
H
I
374
78
90
134
A
B
307
C
533
SW
WT
WT 136
188
1000mm