EasyManua.ls Logo

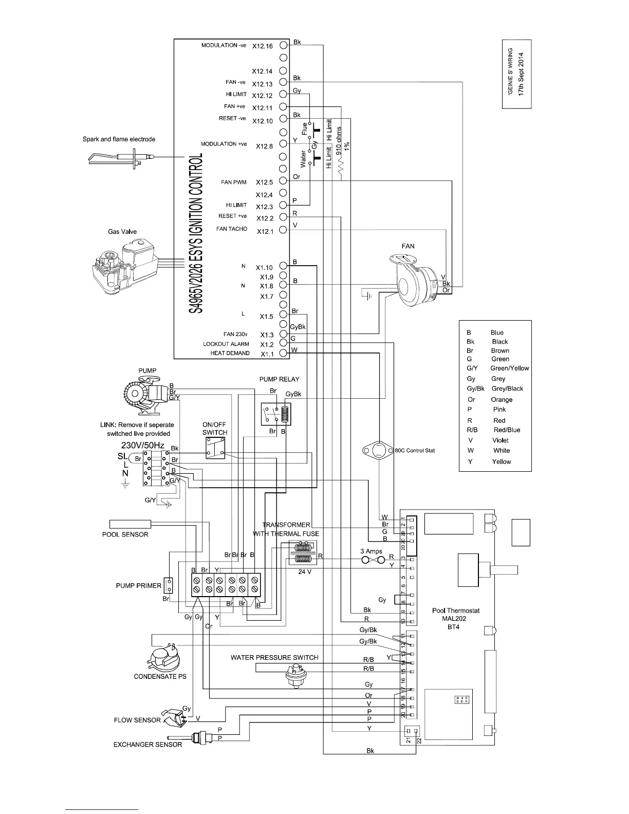
Certikin MB35S - Schematic Wiring Diagram; Electrical Wiring Layout

Default Icon
36 pages
Print Icon
To Next Page IconTo Next Page
To Next Page IconTo Next Page
To Previous Page IconTo Previous Page
To Previous Page IconTo Previous Page
Loading...
Condensing Pool Heater Genie S
Fig.11.0
22
Schematic Wiring