EasyManua.ls Logo

Corken 91 - D. Outline Dimensions

Corken 91
100 pages
Print Icon
To Next Page IconTo Next Page
To Next Page IconTo Next Page
To Previous Page IconTo Previous Page
To Previous Page IconTo Previous Page
Loading...
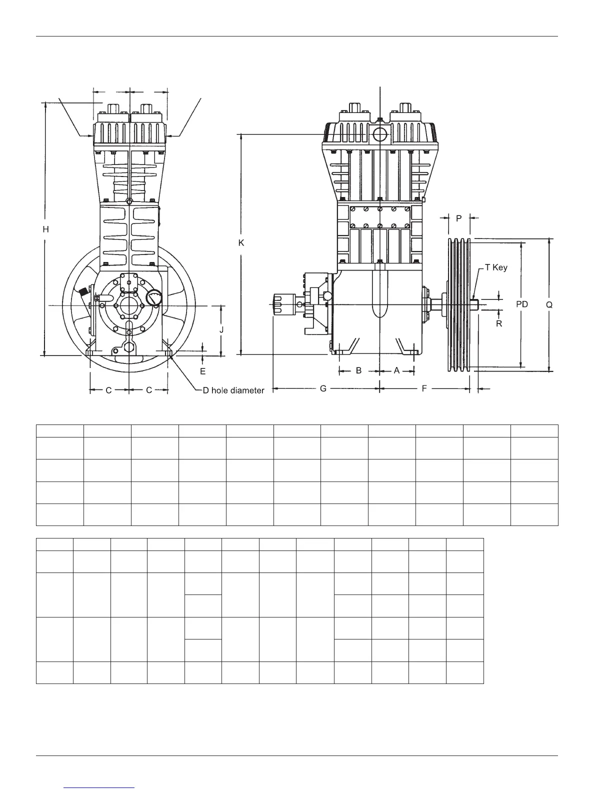
All dimensions are in inches (millimeters).
Appendix DOutline Dimensions
D. Outline Dimensions
Appendix DOutline Dimensions
Models 91–691 and F91–F691 Bare with Flywheel
M
M1
Inlet Outlet
M
M1
S
Model A B C D E F G H J K
91, F91
1-13/16
(46.0)
2-3/8
(60.3)
3-11/16
(93.7)
13/32
(10.3)
5/8
(15.9)
6-1/4
(158.8)
3-7/8
(98.4)
25-5/16
(642.9)
5
(127.0 )
22-11/16
(576.3)
291, F291
3-3/8
(85.7)
4-1/8
(104.8)
3-11/16
(93.7)
7/16
(11.1)
25/32
(19.8)
9-13/16
(249.2)
12-1/16
(306.4)
25 -11/16
(652.5)
5-3/8
(136.5)
23-3/8
(593.7)
491, F491
4-1/8
(104.8)
5
(127.0 )
4-11/16
(119.1)
1/2
(12.7)
11/16
(17. 5 )
10 -11/16
(271.5)
13-3/16
(335.0)
29-5/8
(752.5)
5-7/8
(149.2)
26-3/16
(665.2)
691, F691
4-3/4
(120.7)
5-1/2
(139.7)
5-3/8
(136.5)
9/16
(14.3)
1
(25.4)
14-1/2
(368.3)
14-3/8
(3 65.1)
39-1/8
(993.8)
8-1/4
(209.6)
35-1/16
(890.6)
Model M* M1** P Q R S*** T A-belt Groove B-belt Groove
91, F91
2-3/8
(60.3)
4-1/4
(108.0)
3
(76.2)
14
(355.6)
1-1/8
(28.6)
1-1/4
(31.8)
1/4
(6.4)
13.2
(335.3)
2
13.6
(345.4)
2
291,
F291
2-5/8
(66.7)
4-1/4
(108.0)
3
(76.2)
16
(406.4)
1-1/4
(31.8)
1-1/4
(31.8)
1/4
(6.4)
15.2
(3 86.1)
3
15.6
(396.2)
3
141
(3,581.4)
13.21
(335.5)
2
13.61
(345.7)
2
491,
F491
3-7/8
(98.4)
5-5/8
(142.9)
3
(76.2)
16
(406.4)
1-3/8
(34.9)
1-1/4
(31.8)
5/16
( 7. 9)
15.2
(3 86.1)
3
15.6
(396.2)
3
141
(3,581.4)
13.21
(335.5)
2
13.61
(345.7)
2
691,
F691
6-5/16
(160.3)
6-15/16
(176.2)
3-13/16
(96.8)
19 -1/2
(495.3)
2-1/8
(54.0)
1/2
(12.7)
19 -1/8
(485.8)
4
42

Table of Contents

Related product manuals