EasyManua.ls Logo

Corken 91 - Page 61

Corken 91
100 pages
Print Icon
To Next Page IconTo Next Page
To Next Page IconTo Next Page
To Previous Page IconTo Previous Page
To Previous Page IconTo Previous Page
Loading...
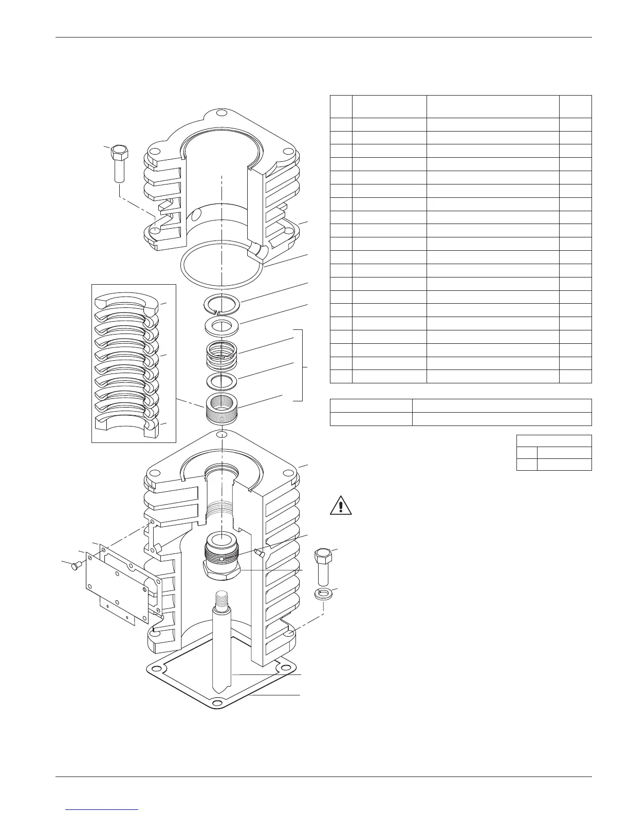
Crosshead
assembly
1
2
3
4
13
20
5
6
7,8,9
7
8
9
10
11
12
14
18
17
19
15
16
Appendix EParts Details for 91 and F91 Packing Assembly
PackingBill of Materials
Ref
No.
Part No. Description Qty.
1. 2242 Cylinder 1
2. 2-235_
a
O-ring for cylinder 1
3. 5000-137 Retainer ring 1
4. 1012 Washer 1
5. 1628 Packing spring 1
6. 1714 Packing box washer 1
7. 1453-1 Male packing ring 1
8. 1454
b
Packing ring 8
9. 1452-1 Female packing ring 1
10. 2240 Crosshead guide 1
11. 1387-X Adjusting screw assembly 1
12. 2526 Crankcase gasket 1
13. 1452-1X1 Packing set 1
14. 7001-037NC100A Bolt (hex head 3/8"-16 x 1") 4
15. 7001-037NC125A Bolt (hex head 3/8"-16 x 1-1/4") 4
16. 7206- 037A Lock washer (3/8") 4
17. 2243 Inspection plate 1
18. 2244 Inspection plate gasket 1
19. 7012-010NC025B Screw (Pan HD phillip) 6
20. 1192 Lock device (not shown) 1
Assembly Number Assembly Name
1132-X 2 Crosshead—piston rod assembly
a
_ denotes material code. See material code chart
for details.
b
The quantity of 1454 packing rings required will
vary due to tolerances. Use cone 4005 for
installation of packing.
c
Registered trademark of the DuPont company.
WARNING
CAUTION: Always relieve pressure in the unit before attempting
any repairs.
Material Code
A Buna-N
B Neoprene
®c
61

Table of Contents

Related product manuals