EasyManua.ls Logo

Cuppone Evolution DG - Page 67

Default Icon
85 pages
Print Icon
To Next Page IconTo Next Page
To Next Page IconTo Next Page
To Previous Page IconTo Previous Page
To Previous Page IconTo Previous Page
Loading...
160418AR03-Manuale EV-DG-CD.doc 04/2016
66
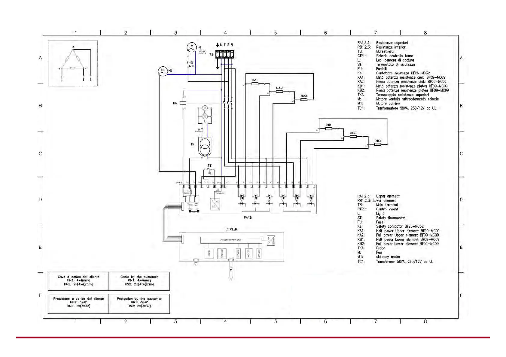
AC 3 208V 50/60 Hz EV_DG

Table of Contents