EasyManua.ls Logo

Daikin ECORICH EHU2504 - External Dimensions

Daikin ECORICH EHU2504
80 pages
Print Icon
To Next Page IconTo Next Page
To Next Page IconTo Next Page
To Previous Page IconTo Previous Page
To Previous Page IconTo Previous Page
Loading...
18
PIM00504
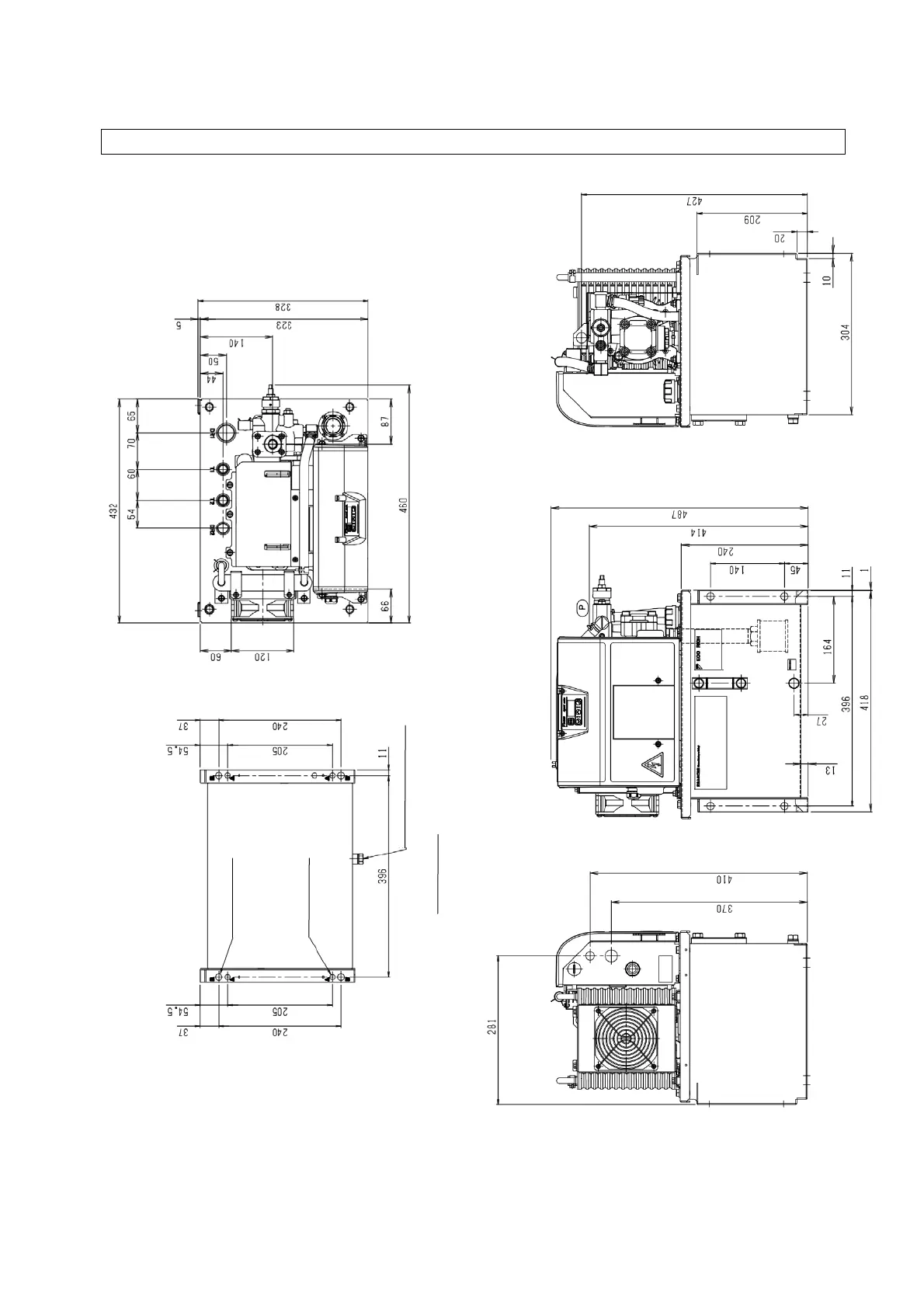
3.4 External Dimensions
4-φ13 holes
( positions)
4-φ10 holes
( positions)
Oil filling /
Oil drain port
Section at A-A
(Dimensions of mounting holes
for installation)

Table of Contents

Related product manuals