EasyManua.ls Logo

Daikin ECORICH EHU2504 - Hydraulic Circuit

Daikin ECORICH EHU2504
80 pages
Print Icon
To Next Page IconTo Next Page
To Next Page IconTo Next Page
To Previous Page IconTo Previous Page
To Previous Page IconTo Previous Page
Loading...
19
PIM00504
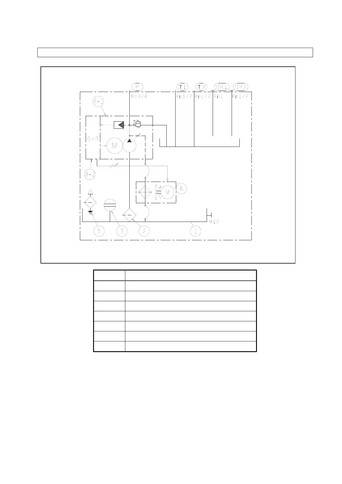
3.5 Hydraulic Circuit
Part No. Name
1 Oil tank
2 Suction strainer
3 Oil level gauge
4-1 Inverter driven motor pump
4-2 Controller
5 Oil filler port-cum-air breather
6 Oil cooler
Above the oil level

Table of Contents

Related product manuals