EasyManua.ls Logo

Daikin R407C PLUS - Low Noise Operation

Daikin R407C PLUS
267 pages
Print Icon
To Next Page IconTo Next Page
To Next Page IconTo Next Page
To Previous Page IconTo Previous Page
To Previous Page IconTo Previous Page
Loading...
Si33-105 Test Operation
Test Operation R407C PLUS Series Heat Recovery System 119
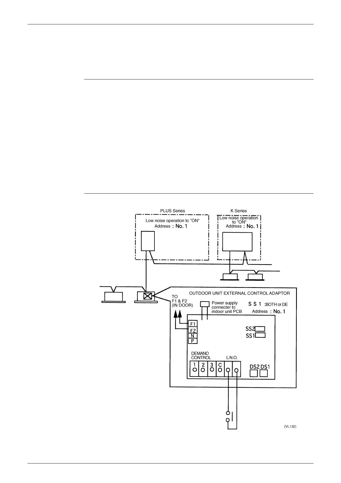
1.6 Low Noise Operation
By connecting the external contact input to the low noise input of the outdoor unit external
control adaptor for outdoor unit (optional), you can save power and lower operating noise by 2 -
3 dB.
Instructions for
Demand Control
Operation
1. Outdoor unit field setting
&
Setting mode 1: Set low noise operation to “ON.”
&
Setting mode 2: Match low noise operation and demand control address with address of
outdoor unit external control adaptor.
2. Outdoor unit external control adaptor setting
&
Function switch (SS1)
Set to “BOTH” or “DE.”
&
Address setting switches (DS1, DS2)
Match with outdoor unit low noise operation and demand control address.
3. Short-circuit the low noise input of outdoor unit external control adaptor for outdoor
unit.
Low Noise
Control System
Example

Table of Contents

Related product manuals