EasyManua.ls Logo

Daikin R407C PLUS - Page 234

Daikin R407C PLUS
267 pages
Print Icon
To Next Page IconTo Next Page
To Next Page IconTo Next Page
To Previous Page IconTo Previous Page
To Previous Page IconTo Previous Page
Loading...
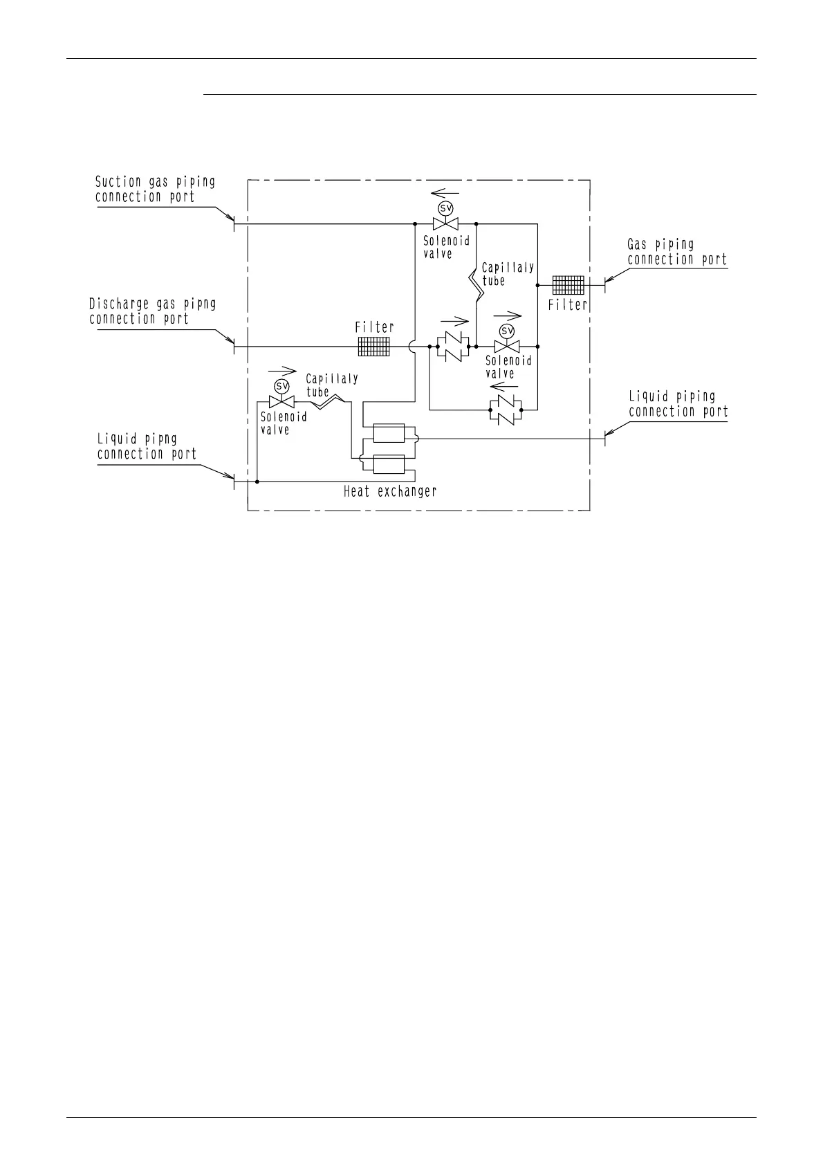
Si33-105 Piping Diagram
Appendix R407C PLUS Series Heat Recovery System 223
BSVP250KJV1
4D014499A

Table of Contents