EasyManua.ls Logo

Daikin VHF - Model VHF & VHW - 18 × 20 Cabinet - Size 015-018

Daikin VHF
64 pages
Print Icon
To Next Page IconTo Next Page
To Next Page IconTo Next Page
To Previous Page IconTo Previous Page
To Previous Page IconTo Previous Page
Loading...
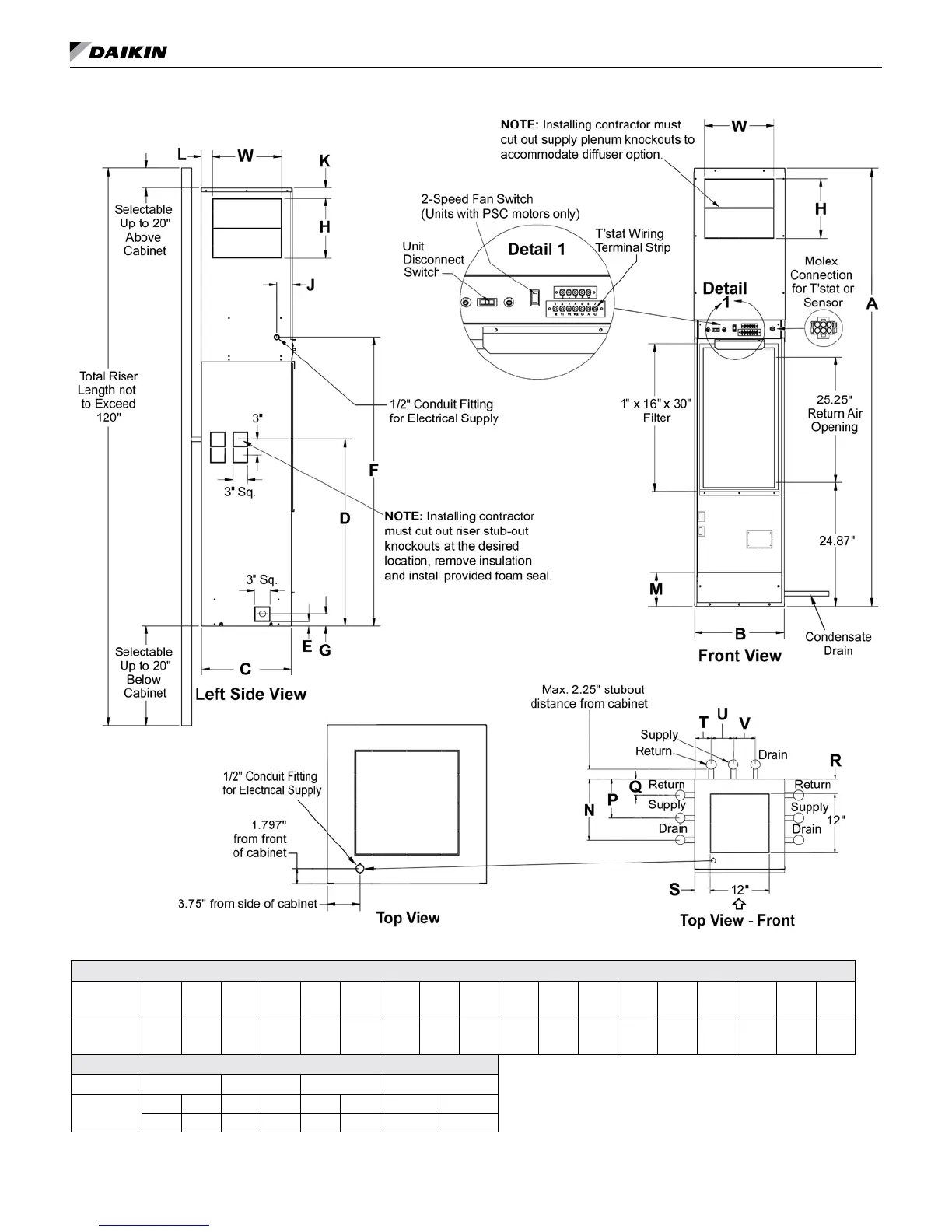
diMensional data
Model VHF & VHW – 18" × 20" Cabinet – Size 015-018
Dimensions
Unit Size 015–018 (18" ˣ 20") Cabinet (Dimensions in inches)
Unit Height
‟A”
B C D E F G J K L M N P Q R S T U V
80, 88,
92, 96
18.07 20.00 37.50 0.88 58.09 2.38 3.125 2.0 3.0 6.72 12.4 7.9 3.3 4.0 3.0 3.12 4.5 4.5
Discharge Openings (Dimensions in inches)
Unit Size Single Double Triple Single- Top Opening
015–018
W H W H W H W H
14 16 14 8 14 8 12 12
Note: 80" high cabinet not available with side discharge, top discharge only.
IM 986-11 • Vertical Stack WSHP 10 www.DaikinApplied.com

Table of Contents

Related product manuals