EasyManua.ls Logo

Daikin VHF - Critical Dimensions; Framing Locations and Dimensions

Daikin VHF
64 pages
Print Icon
To Next Page IconTo Next Page
To Next Page IconTo Next Page
To Previous Page IconTo Previous Page
To Previous Page IconTo Previous Page
Loading...
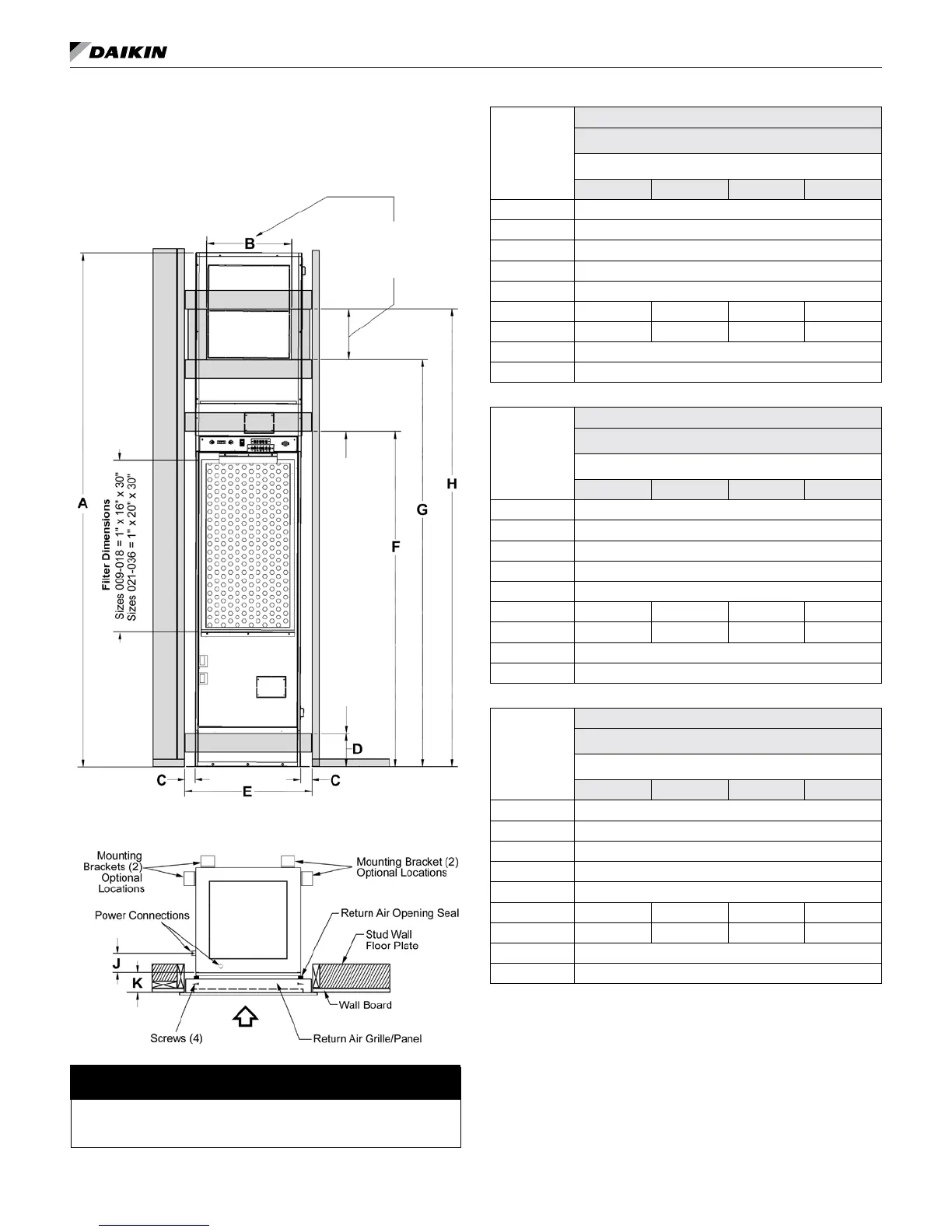
CritiCal diMensions
www.DaikinApplied.com 15 Vertical Stack WSHP • IM 986-11
Framing Locations and Dimensions
Location of framing around unit is critical for proper t-up and
will help reduce sound levels due to the transfer of vibration
when properly installed.
Figure 15: Framing locations and dimensions
Refer to page 18 for dimension “F” requirements
Refer to Table 2 through
Table 4 for “B” dimension
IMPORTANT
If an optional subbase is used, add its height of either 2",
3", 4" or 5" to the vertical dimensions shown in Figure 15.
Table 2: Letter dimensions for Figure 15 (18" x 18" unit)
Dimension
Framing Locations
18" ˣ 18" Unit - Sizes 009-012
Unit Height "A"
80" 88" 92" 96"
B 14"
C 2.07"
D 5.75"
E
1
22.25"
F 58.75"
G
2
60.75" 68.75" 72.75" 76.75"
H
2
78.75" 86.75" 90.75" 94.75"
J 3.125"
K
3
3.125" Min./Max.
Table 3: Letter dimensions for Figure 15 (18" x 20" unit)
Dimension
Framing Locations
18" ˣ 20" Unit - Sizes 015 & 018
Unit Height "A"
80" 88" 92" 96"
B 14"
C 2.07"
D 5.75"
E
1
22.25"
F 58.75"
G
2
60.75" 68.75" 72.75" 76.75"
H
2
78.75" 86.75" 90.75" 94.75"
J 3.125"
K
3
3.125" Min./Max.
Table 4: Letter dimensions for Figure 15 (24" x 24" unit)
Dimension
Framing Locations
24" ˣ 24" Unit - Sizes 021-036
Unit Height "A"
80" 88" 92" 96"
B 18"
C 2.125"
D 5.75"
E
1
28.25"
F 58.75"
G
2
62.75" 70.75" 74.75" 78.75"
H
2
78.75" 86.75" 90.75" 94.75"
J 4.54"
K
3
3.125" Min./Max.
Notes:
1
Dimension “E” ± 0.125
2
Dimension “G” and “H” will vary based on cabinet height selected and
choice of upper or lower discharge knockout.
Refer to "Dimensional Data" on page 9 through page 11.
3
Dimension “K” is critical, and that it be no more or no less than 3.125"
from the nished wall surface to the front of the unit when using the
hinged perimeter return air panel door or the louvered return air panel
door. Refer to page 18.

Table of Contents

Related product manuals