EasyManua.ls Logo

Daikin VHF - Model VHF & VHW - 24 × 24 Cabinet - Size 021-036

Daikin VHF
64 pages
Print Icon
To Next Page IconTo Next Page
To Next Page IconTo Next Page
To Previous Page IconTo Previous Page
To Previous Page IconTo Previous Page
Loading...
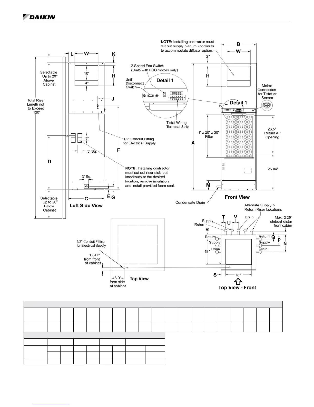
diMensional data
Model VHF & VHW – 24" × 24" Cabinet – Size 021-036
Dimensions
Unit Size 021–036 (24" ˣ 24") Cabinet (Dimensions in inches)
Unit Height
‟A”
B C D E F G J K L M N P Q R S T U V
80, 88,
92, 96
24.00 24.04 37.50 0.88 58.08 2.38 4.54 2.0 3.0 6.72 12.13 7.63 3.13 3.09 3.10 3.12 4.5 4.5
Discharge Openings (Dimensions in inches)
Unit Size Single Double Triple Single- Top Opening
021–024
W H W H W H W H
NR NR 18 10 18 10 18 18
030–036
NR NR 18 14 18 10 18 18
Notes: NR = Not Recommended
80" high cabinet not available with side discharge, top discharge only.
www.DaikinApplied.com 11 Vertical Stack WSHP • IM 986-11

Table of Contents

Related product manuals