EasyManua.ls Logo

Daikin VHF - PSC Motor Wiring Diagrams

Daikin VHF
64 pages
Print Icon
To Next Page IconTo Next Page
To Next Page IconTo Next Page
To Previous Page IconTo Previous Page
To Previous Page IconTo Previous Page
Loading...
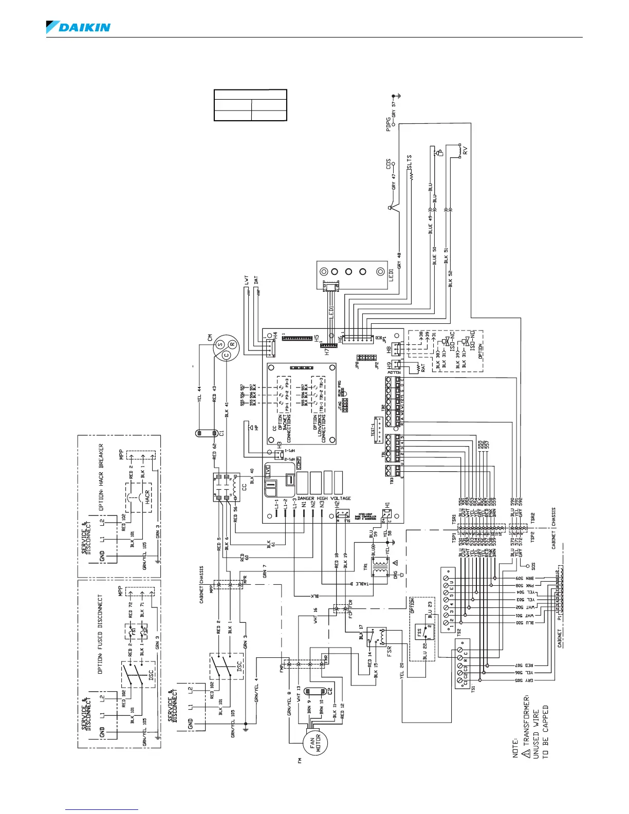
tyPiCal Wiring diagraMs
MicroTech III Unit Controller, PSC Motor, Sensor Control with
Communication Module 208-230/60/1 Unit Size 021
Legend
Item Description
C1 Capacitor-Compressor
C2 Capacitor-Fan
CC Communication Card - Optional
CM Compressor - Motor
COS Condensate Overow Sensor
DSC Disconnect Switch
EB2 Fan Speed Selector
EWT Entering Water Temp Sensor
FCP Fan Connector Plug
FCR Fan Connector Receptacle
FM Fan Motor
FS1, 2 Fuse
HACR HACR Breaker
HP High Pressure Switch
HYH Hydronic Heat Valve - Optional
IOEXP MicroTech III I/O Expansion Board
ISO-** Isolation Valve - Optional
LED1, 2 LED Annunciator / Harness
LP Low Pressure Switch
LWT Leaving Water Temp Sensor
MIII MicroTech III Main Board
MPP Main Power Connector Plug
MPR Main Power Connector Receptacle
OVL Compressor Overload
P1 Tstat Plug
PDPG Primary Drain Pan Ground
RV Reversing Valve Solenoid
SOS Secondary Overow Sensor
SLTS Suction Line Temp Sensor
TS1 Terminal Strip 1
TS2 Terminal Strip 2
TSP Terminal Strip Connector Plug
TSR Terminal Strip Connector Receptacle
TR1 Transformer - 24V
Table B
208V RED
230V ORG
IM 986-11 • Vertical Stack WSHP 50 www.DaikinApplied.com

Table of Contents

Related product manuals