EasyManua.ls Logo

Danfoss FC 102 - Page 35

Danfoss FC 102
114 pages
Print Icon
To Next Page IconTo Next Page
To Next Page IconTo Next Page
To Previous Page IconTo Previous Page
To Previous Page IconTo Previous Page
Loading...
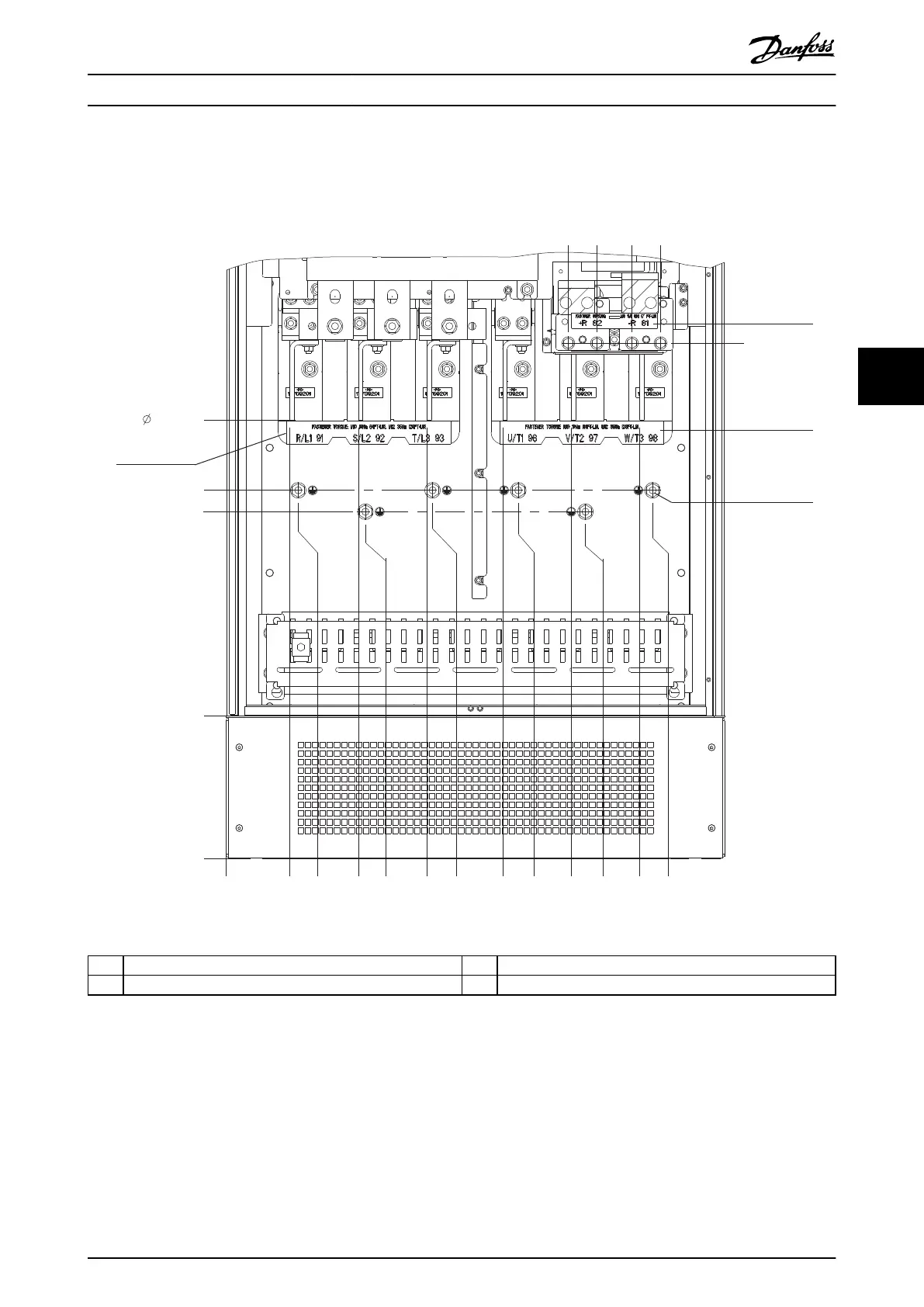
5.7.2 Mains, Motor, and Ground for E2h
130BF689.10
721 (28.4)
6X 613 (24.1)
1
515 (20.3)
485 (19.1)
0 (0.0)
200 (7.9)
185 (7.3)
0 (0.0)
101 (4.0)
89 (3.5)
289 (11.4)
281 (11.1)
195 (7.7)
483 (19.0)
409 (16.1)
387 (15.2)
597 (23.5)
579 (22.8)
503 (19.8)
479 (18.9)
568 (22.4)
519 (20.4)
608 (23.9)
2
3
4
1 Mains terminals 3 Motor terminals
2 Brake or regeneration terminals 4 Ground terminals, M10 nut
Illustration 5.8 E2h Terminal Dimensions (Front View)
Electrical Installation Operating Guide
MG16O102 Danfoss A/S © 01/2017 All rights reserved. 33
5 5

Table of Contents

Other manuals for Danfoss FC 102

Related product manuals