EasyManua.ls Logo

Danfoss FC 102 - Page 36

Danfoss FC 102
114 pages
Print Icon
To Next Page IconTo Next Page
To Next Page IconTo Next Page
To Previous Page IconTo Previous Page
To Previous Page IconTo Previous Page
Loading...
649 (25.5)649 (25.5)
0 (0.0)
0 (0.0)
0 (0.0)
164 (6.4)
290 (11.4)
377 (14.8)
0 (0.0)
164 (6.4)
290 (11.4)
130BF690.10
A
18 (0.7)
0 (0.0)
84 (3.3)
42 (1.7)
5X
0 (0.0)
36 (1.4)
44 (1.8)
14 (0.5)
A
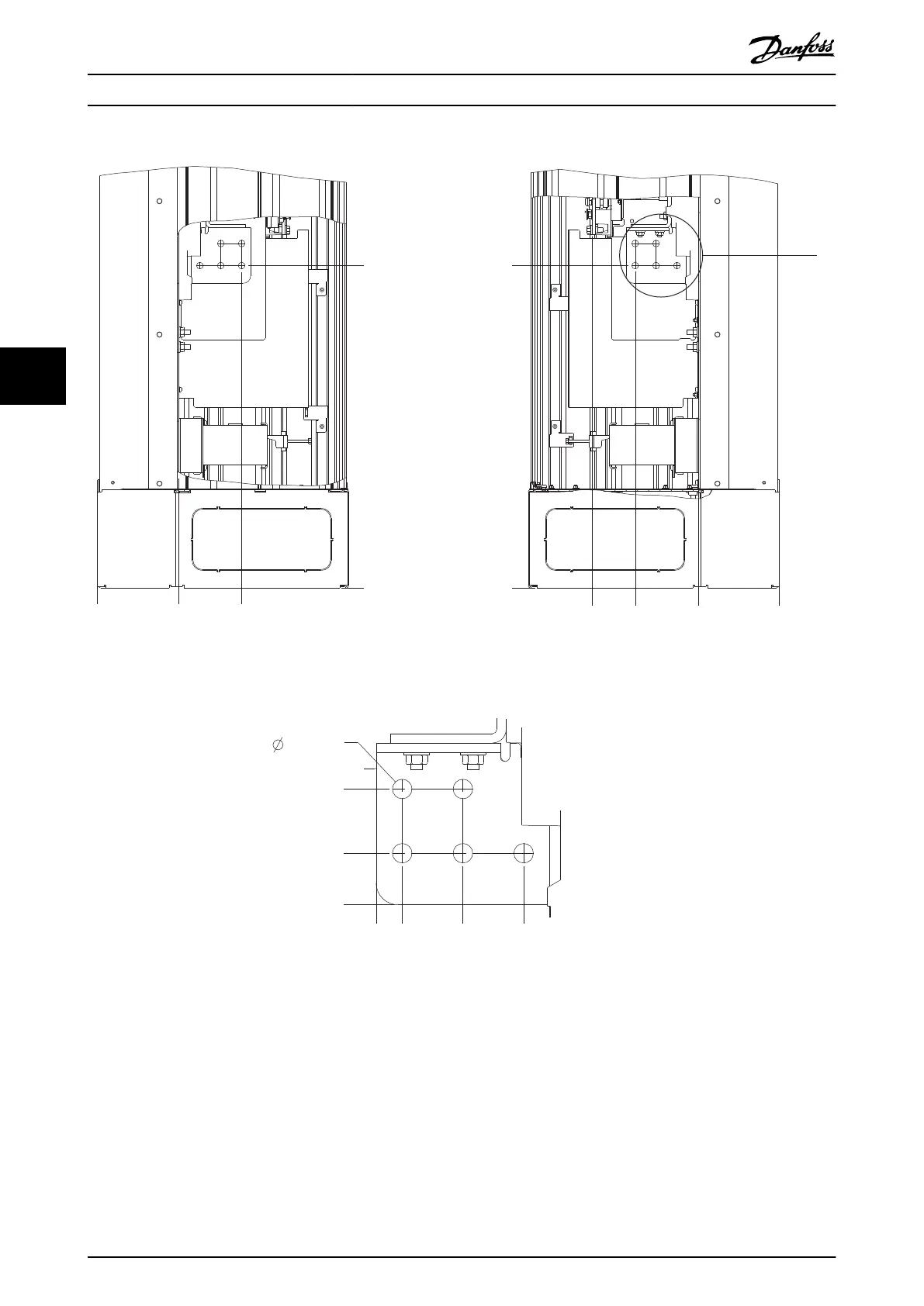
Illustration 5.9 E2h Terminal Dimensions (Side Views)
Electrical Installation VLT® HVAC Drive FC 102
34 Danfoss A/S © 01/2017 All rights reserved. MG16O102
55

Table of Contents

Other manuals for Danfoss FC 102

Related product manuals