EasyManua.ls Logo

Danfoss Series 90 - NFPE control used with a Danfoss microcontroller

Danfoss Series 90
91 pages
Print Icon
To Next Page IconTo Next Page
To Next Page IconTo Next Page
To Previous Page IconTo Previous Page
To Previous Page IconTo Previous Page
Loading...
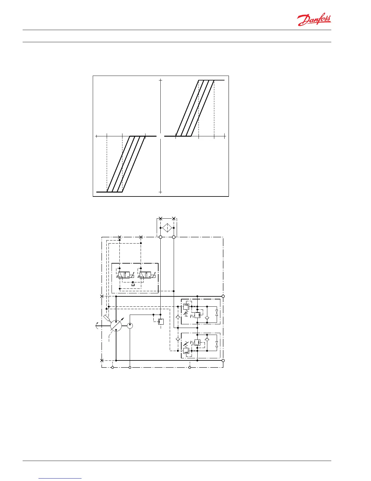
Pump Displacement vs. Input Signal
"0"
Signal Current
mA(DC)
a b c
a
b
c
Displacement
100 %
100 %
NFPE control
p = 300 bar
p = 300 bar
p = 0 bar
p = 0 bar
P003 187E
NFPE Schematic
B
A
M5
M4
M3
M1
M2
L1
S
L2
M6
P003 174
NFPE control used with a Danfoss microcontroller
Creep mode
Two automotive control ramps via mode switch
Engine overspeed protection
Electric control
Anti-stall function
Smooth operation
Technical Information
Series 90 Axial Piston Pumps
Control Options
38 520L0603 • Rev 0804March 2016

Table of Contents

Related product manuals