EasyManua.ls Logo

Delta VFD-V Series - Page 164

Delta VFD-V Series
185 pages
Print Icon
To Next Page IconTo Next Page
To Next Page IconTo Next Page
To Previous Page IconTo Previous Page
To Previous Page IconTo Previous Page
Loading...
B
VFD-V Series
DELTA ELECTRONICS, INC. ALL RIGHTS RESERVED
B-9
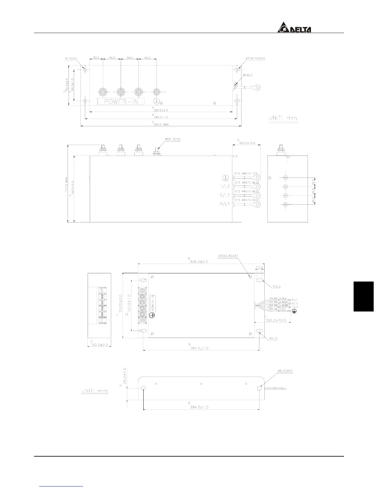
EMI Filters (50TDS4W4V4) Use on 7.5-10HP/230V, VFD110V43A, Three phase Models
EMI Filters (26TDT1W4B4) Use on VFD110V43B

Table of Contents

Related product manuals