EasyManua.ls Logo

Delta VFD-V Series - Page 180

Delta VFD-V Series
185 pages
Print Icon
To Next Page IconTo Next Page
To Next Page IconTo Next Page
To Previous Page IconTo Previous Page
To Previous Page IconTo Previous Page
Loading...
C
VFD-V Series
DELTA ELECTRONICS, INC. ALL RIGHTS RESERVED
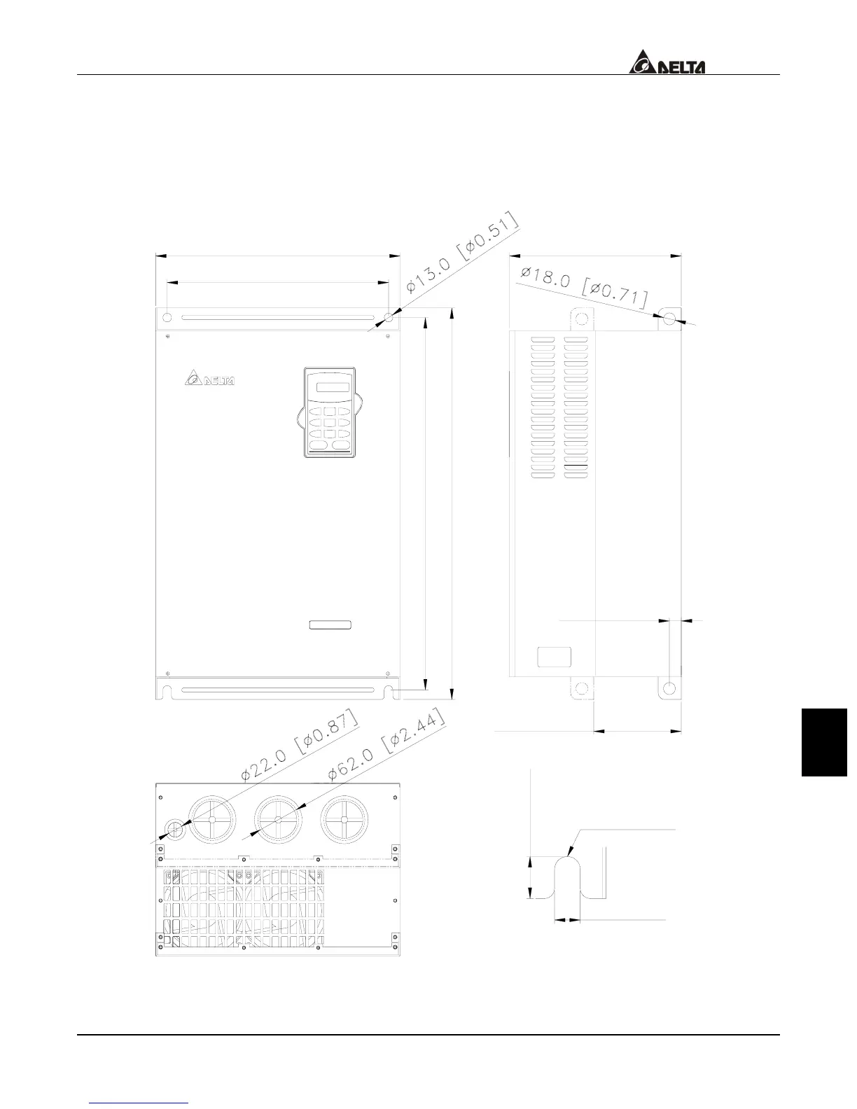
C-7
VFD300V43A
VFD370V43A
VFD450V43A
Unit: mm (inches)
R6.5[0.25]
13.0[0.51]
21.0[0.83]
335.0 [13.19]
370.0 [14.57] 260.0 [10.24]
589.0 [23.19]
560.0 [22.05]
18.0 [0.71]
132.5 [5.22]

Table of Contents

Related product manuals