EasyManua.ls Logo

Denso SMT7 - Page 52

Denso SMT7
118 pages
Print Icon
To Next Page IconTo Next Page
To Next Page IconTo Next Page
To Previous Page IconTo Previous Page
To Previous Page IconTo Previous Page
Loading...
Chapter 3 Choosing AC Servomotors
36
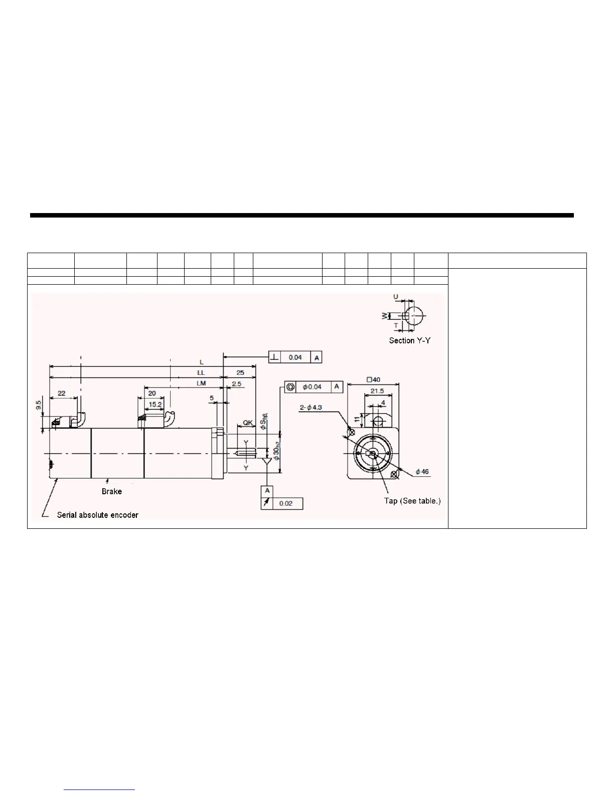
Standard type with brake [50W or 100W]
Part No.
Motor model
SGMAH -
Rated
output
L LL LM S Tap QK U W T
Approx
weight
Remarks
410627-0160 A5A1A - DH2* 50W 133.5 108.5 44.0 6 Dia. 2.5, Depth 5 14 1.2 2 2 0.7 kg
410627-0170 01A1A - DH2* 100W 160.0 135.0 61.5 8 Dia. 3, Depth 6 14 1.8 3 3 0.8 kg
(Unit: mm)
(1) Assembly accuracy conforms to Japan
Machine Tool Builder's Association
standard (MAS402-1981). (TIR value)
a) Shaft end deflection 0.03
(Shaft projection center)
b) Squareness of flange face against
shaft 0.08 (45)
c) Eccentricity of
flange-fitting-outside diameter
against shaft
(Spigot joint portion center)
(2) Flange fixing bolt:
Use hexagon socket head bolt.
(3) Motor cable / Encoder cable length:
300 mm

Table of Contents

Related product manuals