EasyManua.ls Logo

Denso SMT7 - Page 54

Denso SMT7
118 pages
Print Icon
To Next Page IconTo Next Page
To Next Page IconTo Next Page
To Previous Page IconTo Previous Page
To Previous Page IconTo Previous Page
Loading...
Chapter 3 Choosing AC Servomotors
38
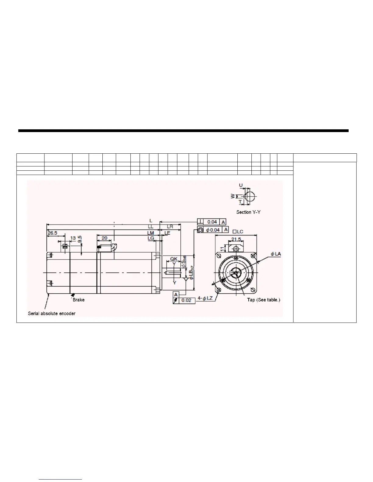
Standard type with brake [200W, 400W or 750W]
Part No.
Motor model
SGMAH-
Rated
output
L LL LM LR LE LG LC LA LZ S LB Tap QK U W T
Approx
weight
Remarks
410627-0180 02A1A–DH2* 200W 166.0 136.0 62.5 30 3 6 60 70 5.5 14 50 Dia. 5, Depth 8 20 3 5 5 1.6 kg
410627-0190 04A1A–DH2* 400W 194.0 164.0 90.5 30 3 6 60 70 5.5 14 50 Dia. 5, Depth 8 20 3 5 5 2.2 kg
410627-0200 08A1A-DH2* 750W 229.5 189.5 111 40 3 8 80 90 7 16 70 Dia. 5, Depth 8 20 3 5 5 4.3kg
(Unit: mm)
(1) Assembly accuracy
conforms to Japan Machine
Tool Builder's Association
standard (MAS402-1981).
(TIR value)
a) Shaft end deflection
0.03
(Shaft projection center)
b) Squareness of flange
face against shaft 0.08
(45)
c) Eccentricity of
flange-fitting-outside
diameter against shaft
(Spigot joint portion
center)
(2) Flange fixing bolt:
Use hexagon socket head
bolt.
(3) Motor cable / Encoder cable
length: 300 mm

Table of Contents

Related product manuals