EasyManua.ls Logo

Denso SMT7 - Page 56

Denso SMT7
118 pages
Print Icon
To Next Page IconTo Next Page
To Next Page IconTo Next Page
To Previous Page IconTo Previous Page
To Previous Page IconTo Previous Page
Loading...
Chapter 3 Choosing AC Servomotors
40
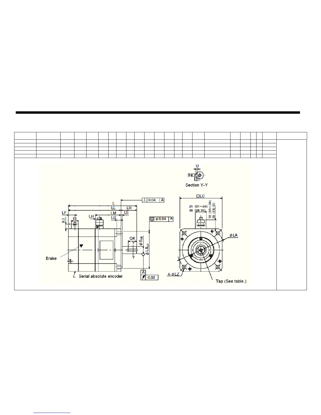
Flat type with brake [100W, 200W, 400W, 750W or 1.5kW]
Part No.
Motor model
SGMPH-
Rated
output
L LL LM LR LE LG LF LC LA LZ S LB LH Tap QK U W T
Approx
weight
Remarks
410627-0260 01A1A–DH2* 100W 116.0 91.0 42.5 25 3 6 12.5 60 70 5.5 8 50 10.55 Dia. 3, Depth 6 14 1.8 3 3 0.9 kg
410627-0270 02A1A–DH2* 200W 128.5 98.5 48.1 30 3 8 11.9 80 90 7 14 70 8.25 Dia. 5, Depth 8 16 3 5 5 1.9 kg
410627-0280 04A1A–DH2* 400W 148.5 118.5 68.1 30 3 8 11.9 80 90 7 14 70 8.25 Dia. 5, Depth 8 16 3 5 5 2.6 kg
410627-0290 08A1A–DH2* 750W 163.0 123.0 66.7 40 3.5 10 12.8 120 145 10 16 110 10.5 Dia. 5, Depth 8 22 3 5 5 5.7kg
410627-0300 15A1A–DH2* 1.5kW 188.0 148.0 94.7 40 3.5 10 12.8 120 145 10 19 110 10.5 Dia. 6, Depth 10 22 3.5 6 6 8.1kg
(Unit: mm)
(1) Assembly
accuracy conforms
to Japan Machine
Tool Builder's
Association
standard
(MAS402-1981).
(TIR value)
a) Shaft end
deflection: 0.03
(Shaft projection
center)
b) Squareness of
flange face against
shaft 0.08 (45)
c) Eccentricity of
flange-fitting-outsid
e diameter against
shaft (Spigot joint
portion center)
(2) Flange fixing
bolt:
Use hexagon
socket head bolt.
(3) Motor cable /
Encoder cable
length: 300 mm

Table of Contents

Related product manuals