EasyManua.ls Logo

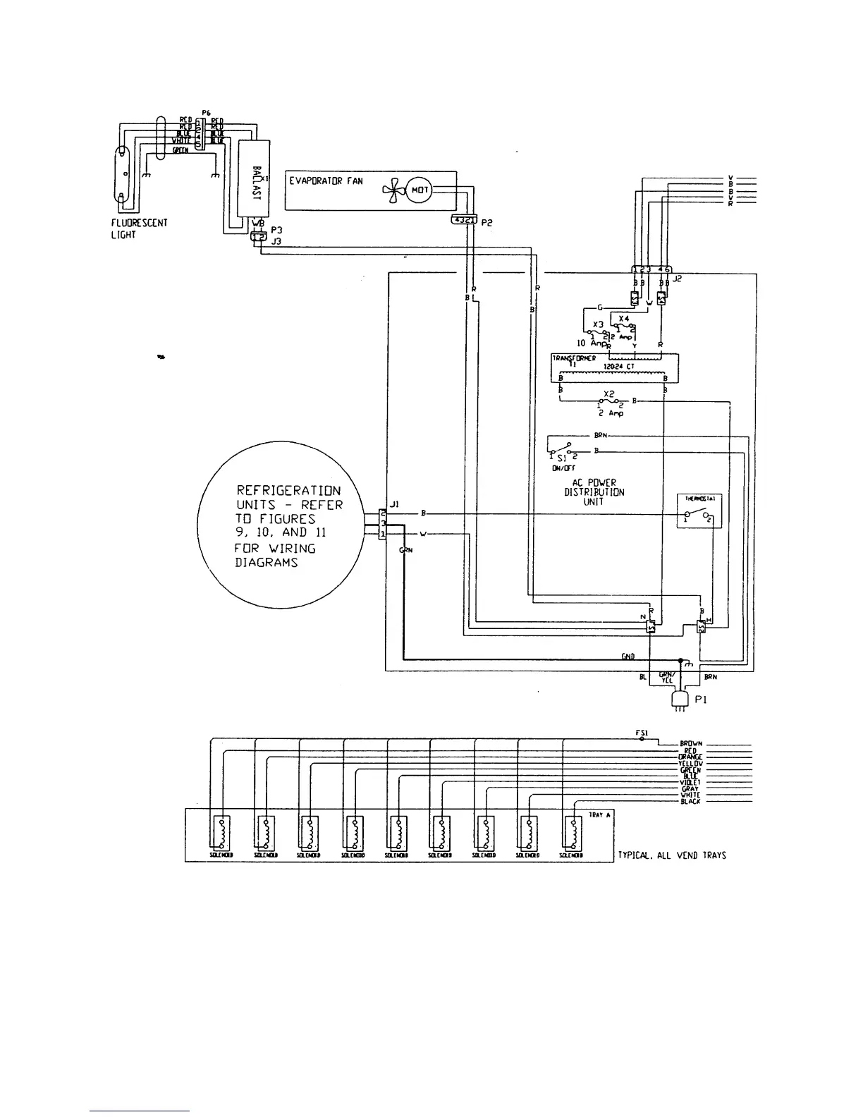
Dixie Narco 2145 - Figure 6 - System Schematic (Left Side)

Dixie Narco 2145
98 pages
Print Icon
To Next Page IconTo Next Page
To Next Page IconTo Next Page
To Previous Page IconTo Previous Page
To Previous Page IconTo Previous Page
Loading...
Page 63
FIGURE 6 – SYSTEM SCHEMATIC (LEFT SIDE)

Table of Contents

Related product manuals