EasyManua.ls Logo

Dynojet 200 - Installing the Left Blower Mount

Dynojet 200
40 pages
Print Icon
To Next Page IconTo Next Page
To Next Page IconTo Next Page
To Previous Page IconTo Previous Page
To Previous Page IconTo Previous Page
Loading...
APPENDIX B
Model 200iX/250iX In Ground Blower Installation
High Pressure Blower Installation Guide
B-6
INSTALLING THE LEFT BLOWER MOUNT
For iXW installation instructions, refer to the In Ground Model 200iPX/250iPX
Motorcycle Dynamometer Installation Guide
P/N 98200074.
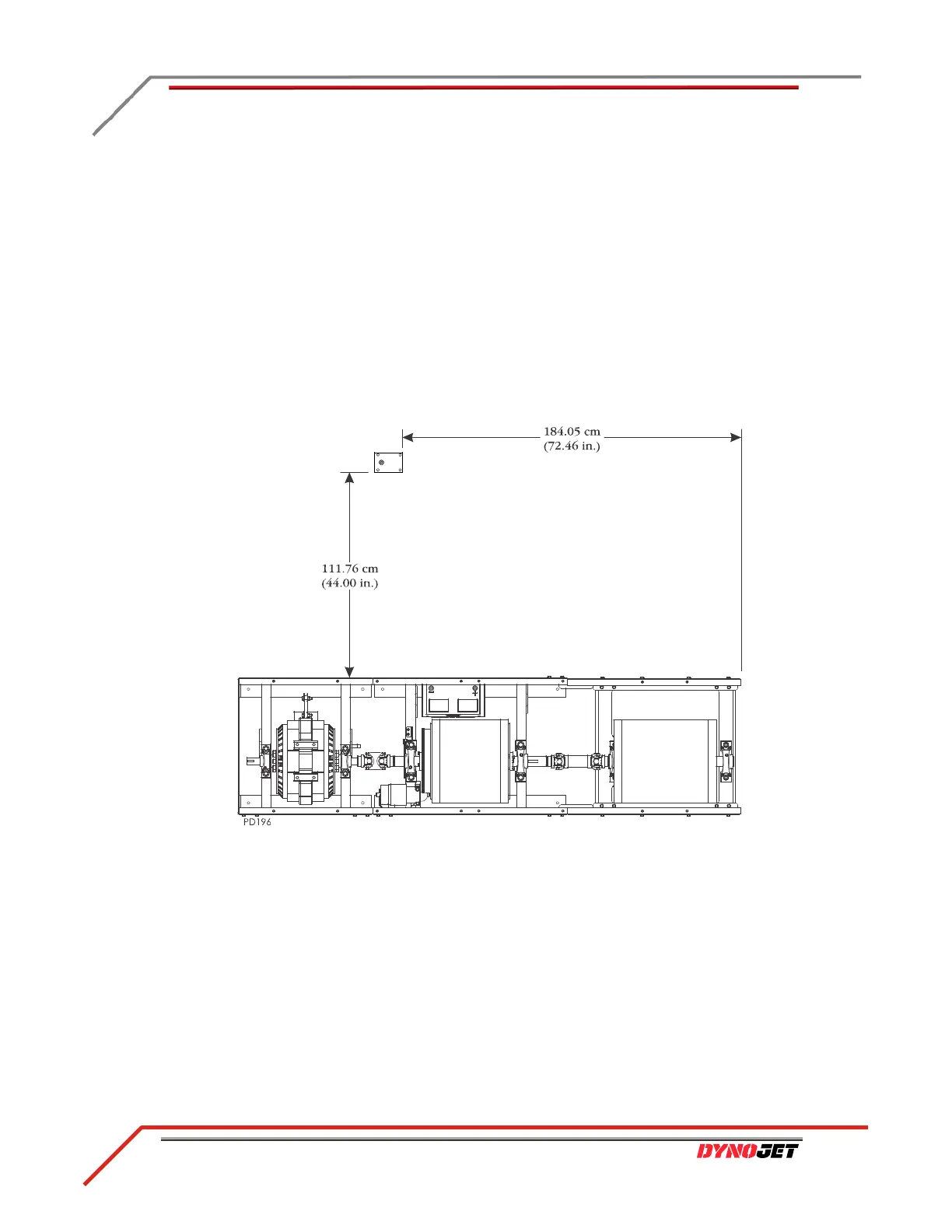
1 Mark the left blower mount placement as shown in Figure B-3.
2 Using the blower mount as a template, mark and drill the four holes needed to
secure the blower mount to the floor.
3 Install the Red Head anchors. Refer to Appendix A for installation instructions.
4 Place the blower mount where you installed the Red Head anchors.
5 Secure the blower mount (along with the monitor support arm and junction box)
to the pit floor using four 3/8 x 1-inch bolts and four washers. The left blower
mount is secured under the support arm.
Figure B-3: Install the Left Blower Mount

Related product manuals