EasyManua.ls Logo

Dynojet 200 - Installing the Right Blower Mount and Blower Assembly

Dynojet 200
40 pages
Print Icon
To Next Page IconTo Next Page
To Next Page IconTo Next Page
To Previous Page IconTo Previous Page
To Previous Page IconTo Previous Page
Loading...
APPENDIX B
Model 200iX/250iX In Ground Blower Installation
High Pressure Blower Installation Guide
B-8
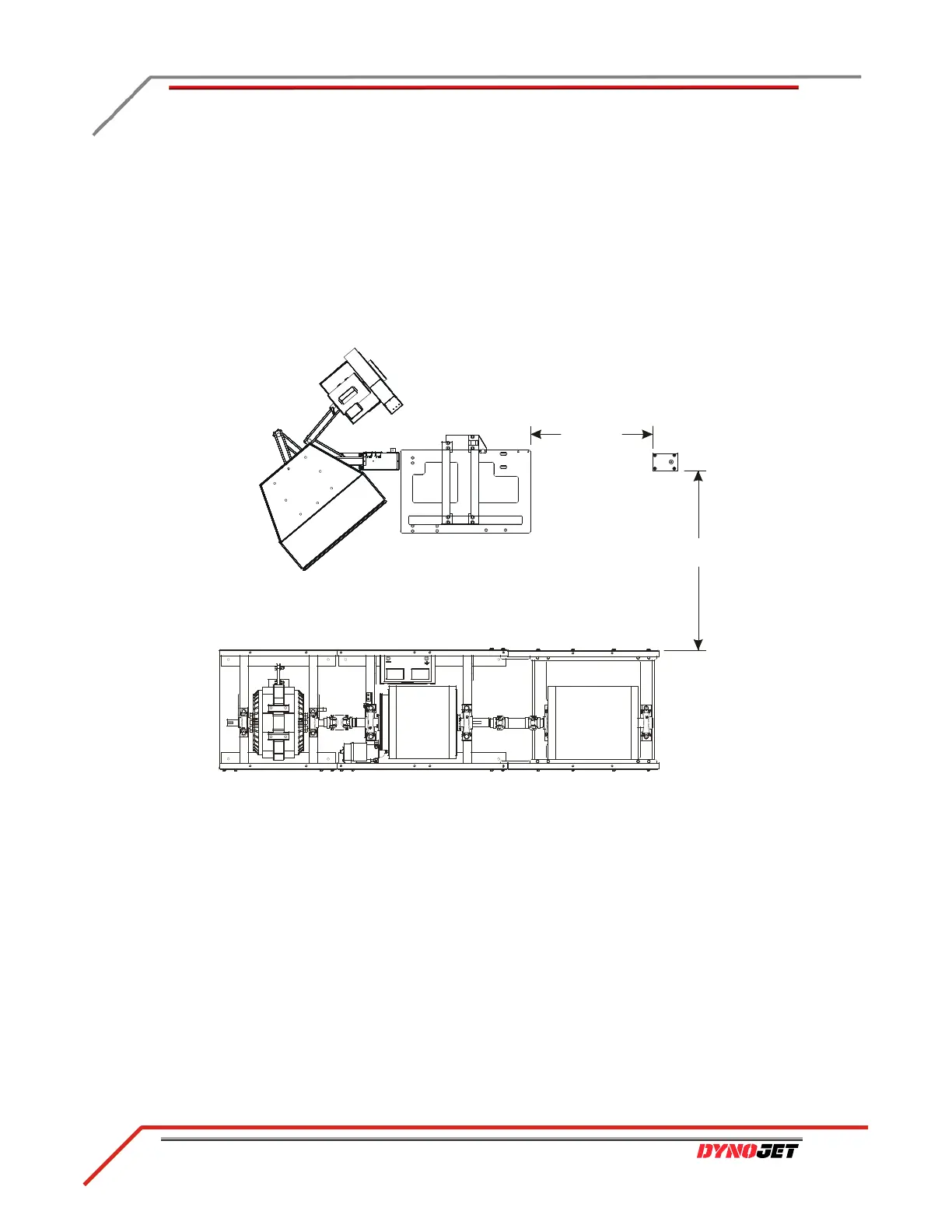
INSTALLING THE RIGHT BLOWER MOUNT AND BLOWER ASSEMBLY
1Using Figure B-5 as a guide, place the blower mount in a location that works best
for your dyno application.
2 Using the blower mount as a template, mark and drill the four holes needed to
secure the blower mount to the floor.
3 Install the Red Head anchors. Refer to Appendix A for installation instructions.
4 Secure the blower mount to the floor using four 3/8-16 x 1-inch hex bolts and four
5/16-inch flat washers.
Figure B-5: Install the Right Blower Mount
111.76 cm
(44.00 in.)
76.20 cm
(30.00 in.)
PD199

Related product manuals