EasyManua.ls Logo

Engine distributors WSG-1068 - Page 194

Default Icon
331 pages
Print Icon
To Next Page IconTo Next Page
To Next Page IconTo Next Page
To Previous Page IconTo Previous Page
To Previous Page IconTo Previous Page
Loading...
178
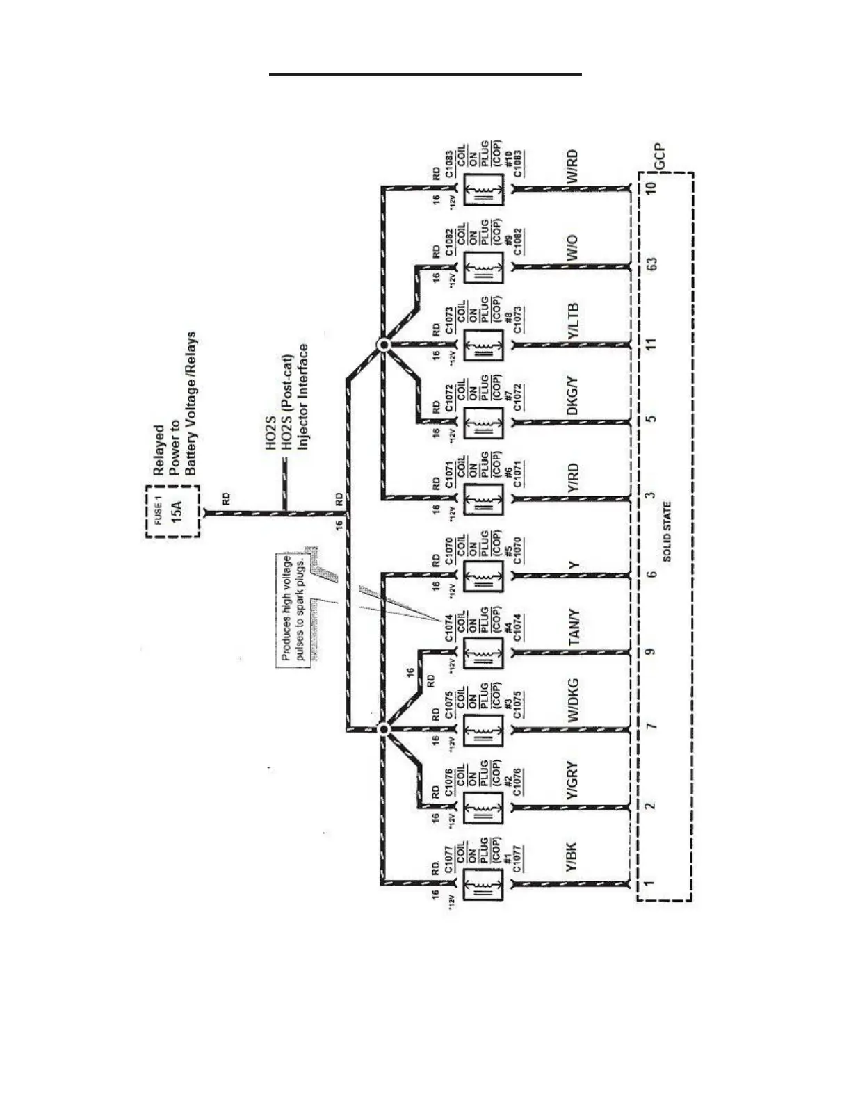
WSG-1068 IGNITION SYSTEM
Engine Controls

Table of Contents

Related product manuals